**Standout Features:**
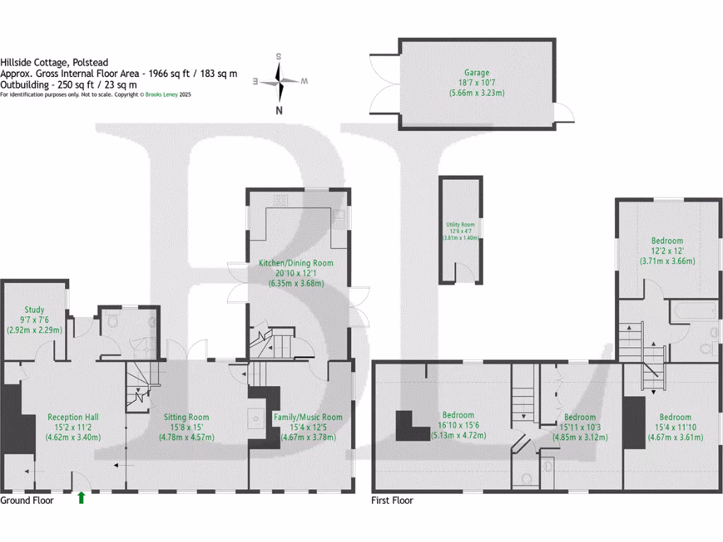
- 1,996 sq ft, Grade II listed semi-detached home
- Four spacious bedrooms accessible via two staircases
- Recently rethatched (2022) and charm of period features
- Generous 0.20-acre south-facing private garden
- EV charging point and single garage with off-street parking
- Chain-free sale, located in an Area of Outstanding Natural Beauty
**Summary:**
Hillside Cottage, a captivating Grade II listed semi-detached home built in 1723, combines historical charm with modern potential. Situated in Polstead, this spacious 1,996 sq ft residence features four well-proportioned bedrooms, three interconnected reception rooms, and a functional kitchen/breakfast area that opens onto a sun-soaked patio, perfect for summer entertaining. Character-rich attributes such as original pamment floors, exposed beams, and a log-burner add to its allure, making it an ideal setting for families seeking both comfort and uniqueness.
While the property has seen recent thatching and offers substantial outdoor space on a 0.20-acre plot, it does require some modernisation, including window renovations. Buyers will appreciate the peace of mind from a low-crime rural locale, while also enjoying easy access to local amenities and community life. With the added benefits of off-street parking, an EV charger, and a relaxed village atmosphere, this home presents a rare opportunity to create your dream residence. Act fast, as unique properties like this do not stay on the market for long!
3 bedroom cottage for sale in 1 Polstead Hill, Polstead, Suffolk, CO6 — £535,000 • 3 bed • 1 bath • 1159 ft²
3 bedroom semi-detached house for sale in The Street, Stoke By Clare, Suffolk , CO10 — £450,000 • 3 bed • 2 bath • 1218 ft²
2 bedroom cottage for sale in Little London, IP14 — £295,000 • 2 bed • 1 bath • 967 ft²
4 bedroom cottage for sale in Bear Street, Nayland, Suffolk, CO6 — £420,000 • 4 bed • 2 bath • 1200 ft²
3 bedroom detached house for sale in Stanstead, Sudbury, Suffolk, CO10 — £475,000 • 3 bed • 1 bath • 1227 ft²
2 bedroom cottage for sale in Middlewood Green, Stowmarket, IP14 — £650,000 • 2 bed • 1 bath • 1616 ft²






















































































