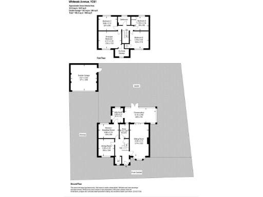
4 double bedrooms plus potential ground-floor 5th bedroom
Set on a large, private corner plot on Whiteoak Avenue, this well‑proportioned detached home delivers versatile family living and wide open countryside views. The heart of the house is a sociable kitchen and a 20ft full‑height glazed garden room with underfloor heating — an all‑year space that anchors daily life and entertaining. The sitting room has an open fire and there’s a separate study, utility and cloakroom for practical family use.
Accommodation currently provides four double bedrooms with a larger-than-average principal bedroom and contemporary ensuite; the dining room could be converted into a fifth ground‑floor bedroom and the cloakroom adapted into a further ensuite for added flexibility. The house is presented beautifully in many rooms and will suit buyers who want move‑in comfort with clear scope to personalise or modestly extend, subject to planning.
Outside, the south‑facing rear garden is generous, enclosed and enjoys open views across the countryside. A detached double garage and long driveway provide plentiful off‑street parking. Practical features include gas central heating, double glazing, excellent mobile signal and fast broadband — useful for home working and family life.
Note the property is an average‑sized 20th‑century suburban build on a larger than average plot; while stylish, parts of the house may benefit from updating or reconfiguration to suit specific needs. There is no flooding risk and the home is offered freehold, located close to good local schools and village amenities.



















































































