### Standout Features:
- **Four Double Bedrooms**: Including a principal bedroom with en suite
- **Refitted Modern Kitchen**: Featuring a breakfast area for casual dining
- **Spacious Dual Aspect Living Room**: Bright and inviting, perfect for family gatherings
- **South West Facing Garden**: Generous with L-shaped layout, ideal for entertaining and landscaping
- **Double Garage & Extended Driveway**: Ample parking for multiple vehicles (up to six cars)
- **Potential for Expansion (STPP)**: Room to grow as your family needs change
- **Affluent, Family-Friendly Neighborhood**: Located in a low-crime area with excellent local schools
### Summary:
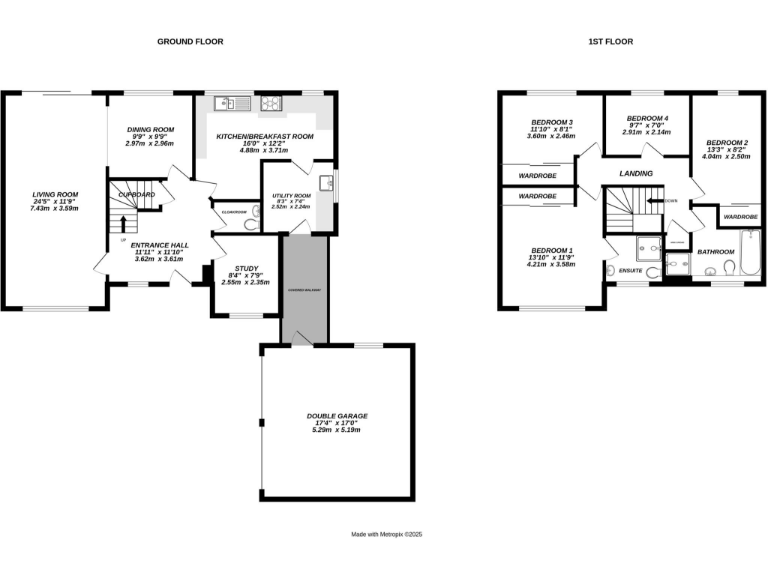
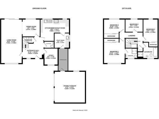
This impressive detached Tudor-style family home offers an abundance of space and light, perfect for modern living. As you enter, a welcoming hallway leads to a dual-aspect living room that flows into a charming dining area—ideal for entertaining guests. The thoughtfully designed kitchen comes complete with a breakfast nook, utility room, and direct access to a generous double garage. The upper level showcases a tranquil principal bedroom with a stylish en suite, two further double bedrooms with fitted wardrobes, and a versatile single bedroom that can double as a home office or hobby space.
The south-west facing garden is a standout feature, boasting an L-shaped layout that provides endless potential for landscaping, entertaining, or play. With established greenery including over 20 rose bushes, this well-maintained outdoor space invites relaxation and family fun. Situated on a substantial plot with ample parking and located in a comfortable suburban area with exceptional schools, this home presents an incredible opportunity for families looking for space, comfort, and future flexibility for expansion. Act quickly, as a property of this caliber in such a desirable neighborhood won’t last long!



























































































