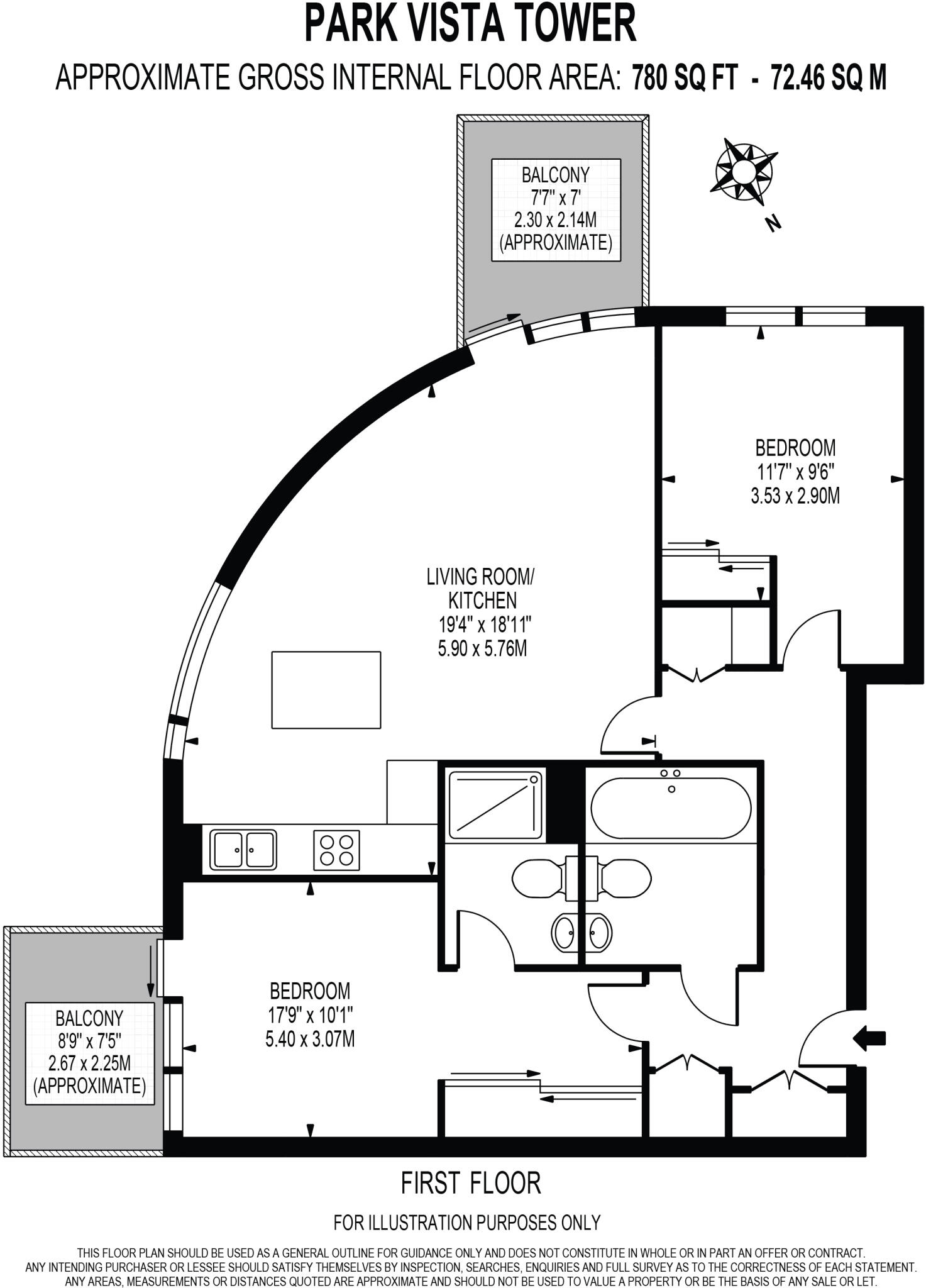
**Standout Features:**
- Two spacious bedrooms with integrated wardrobes
- Two bathrooms for added convenience
- Two private balconies with views over Wapping Woods
- Modern design with floor-to-ceiling windows
- Exclusive resident amenities: private cinema, gym, hydro pool, and 24-hour concierge
- Approx. 780 sq ft of living space
- Close proximity to Wapping Overground station
**Potential Concerns:**
- Above-average crime rate in the area
- Higher service charge and ground rent compared to average
- Average broadband speeds and area-specific deprivation
---
Step into modern urban living with this immaculate two-bedroom apartment in the prestigious Park Vista Tower, carefully crafted for comfort and sophistication. Spanning approximately 780 sq ft, this stunning home boasts generous floor-to-ceiling windows, flooding the open-plan kitchen and living area with natural light. Picture yourself enjoying morning coffee on one of the private balconies, with beautiful views of Wapping Woods. With two luxury bathrooms and bedrooms, plus integrated wardrobes, this apartment meets every demand for spacious, modern living.
Residents will relish exclusive access to a private cinema, gym, hydro pool, and 24-hour concierge service, making every day feel like a hotel escape. The location offers convenience with Wapping Overground station nearby, providing excellent transport links. While the area has an above-average crime rate and average broadband speeds, the potential for a vibrant city lifestyle is undeniable. This property presents an exciting opportunity for investors and families alike—act quickly, as this desirable home in a cosmopolitan area is a rare find!
2 bedroom apartment for sale in Park Vista Tower, 21 Wapping Lane, London, E1W — £650,000 • 2 bed • 2 bath • 785 ft²
1 bedroom apartment for sale in Park Vista Tower, E1W — £430,000 • 1 bed • 1 bath • 535 ft²
Studio apartment for sale in Cobblestone Square, London, E1W — £330,000 • 1 bed • 1 bath • 358 ft²
2 bedroom apartment for sale in Park Vista Tower, 5 Cobblestone Square, London, E1W — £750,000 • 2 bed • 2 bath • 839 ft²
1 bedroom apartment for sale in Admiralty House, 150 Vaughan Way, E1W — £750,000 • 1 bed • 1 bath • 582 ft²
3 bedroom flat for sale in Compass House, 11 Raine Street, London, E1W — £725,000 • 3 bed • 2 bath • 1122 ft²






































































