Smart, efficient three-bed new home ideal for first movers or small families.
Compact new-build mid-terrace: approx. 445 sq ft
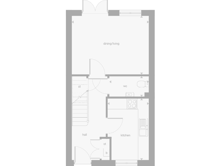
This compact three-bedroom mid-terrace mews house is a new-build home designed for practical, low-maintenance living. The ground floor has a separate kitchen and a living-dining room with French doors that open onto a small private garden, bringing natural light into the main living space. Allocated off-street parking, double glazing and contemporary finishes (including solar panels) suit buyers wanting modern, efficient accommodation.
Upstairs offers a principal bedroom with added storage and two further bedrooms that can double as a home office or gym. The property comes with a 10-year NHBC warranty and an annual service charge of £125.68. Broadband speeds are reported very slow locally — important for anyone working from home — while mobile signal is excellent.
The overall footprint is small (approx. 445 sq ft) and there is a single family bathroom, so space is compact and best suited to first-time buyers, couples or small families prioritising new-build convenience over generous room sizes. The development is in an area described as deprived with local community characteristics noted; buyers should factor local amenities and longer-term area prospects into their decision.
Practical positives include low-maintenance outdoor space, allocated parking and energy-efficient features. Notable constraints are the limited internal space, only one bathroom, slow broadband and the modest service charge and area context — all stated plainly so the right buyer knows what to expect.
3 bedroom mews property for sale in 1 Bradshaw Lane,
Edinburgh,
EH12 0BB , EH12 — £370,000 • 3 bed • 1 bath • 631 ft²
3 bedroom town house for sale in 1 Bradshaw Lane,
Edinburgh,
EH12 0BB , EH12 — £400,000 • 3 bed • 1 bath • 704 ft²
4 bedroom detached house for sale in Off Turnhouse Road,
Edinburgh,
EH12 0AD, EH12 — £600,000 • 4 bed • 1 bath • 1010 ft²
4 bedroom detached house for sale in 1 Bradshaw Lane,
Edinburgh,
EH12 0BB , EH12 — £550,000 • 4 bed • 1 bath • 1091 ft²
5 bedroom detached house for sale in 1 Bradshaw Lane,
Edinburgh,
EH12 0BB , EH12 — £649,000 • 5 bed • 1 bath • 1136 ft²
4 bedroom detached house for sale in Off Turnhouse Road,
Edinburgh,
EH12 0AD, EH12 — £530,000 • 4 bed • 1 bath • 1121 ft²














































