Spacious layout, south-west garden and excellent school catchment.
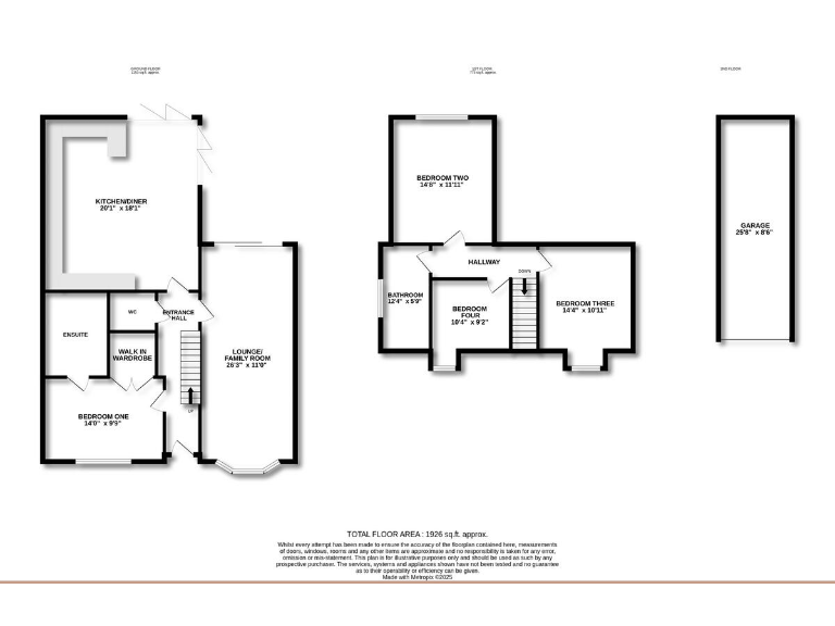
Heavily extended: four double bedrooms, including ground-floor en-suite
This heavily extended semi-detached house offers adaptable family living across two levels with four double bedrooms, including a ground-floor primary suite with en-suite. The open-plan kitchen/diner with bi-folding doors connects directly to a south-west facing garden, ideal for afternoon sun and family entertaining. A large lounge/family room with a log burner provides a cosy social hub.
Outside, the property benefits from ample off-street parking and a detached garage on a decent plot, useful for vehicles and storage. The home sits in a strong school catchment (Robert Drake Primary and The Appleton School) and in a very low-crime, affluent neighbourhood with excellent mobile signal.
Practical considerations: the house was constructed in the 1950s–60s with solid brick walls (assumed no cavity insulation) and double glazing installed post-2002; energy-efficiency improvements may be required. Broadband speeds are slow. Council Tax Band D and freehold tenure apply. Overall this is a roomy, well-located family home with clear scope for modernisation to improve comfort and running costs.
4 bedroom semi-detached house for sale in Hazlemere Road, Benfleet, Essex, SS7 — £550,000 • 4 bed • 2 bath • 1847 ft²
4 bedroom detached house for sale in Rowan Close, Rayleigh, SS6 — £650,000 • 4 bed • 3 bath • 2272 ft²
4 bedroom semi-detached house for sale in Seamore Avenue, Benfleet, SS7 — £400,000 • 4 bed • 1 bath • 1053 ft²
5 bedroom semi-detached house for sale in Appleton Road, Benfleet, SS7 — £550,000 • 5 bed • 2 bath • 1723 ft²
4 bedroom semi-detached house for sale in St. Martins Close, Benfleet, SS7 — £400,000 • 4 bed • 1 bath • 2651 ft²
4 bedroom semi-detached house for sale in Hawkwell Chase, Hawkwell, SS5 — £400,000 • 4 bed • 2 bath • 1049 ft²


























































































































