Immaculate, move-in-ready house with garage and driveway for family life.
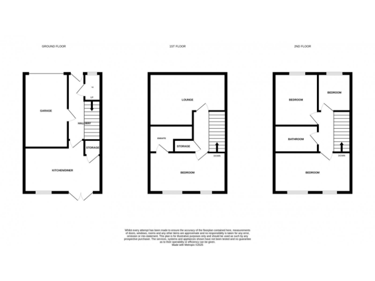
Four bedrooms and three bathrooms across three storeys
This modern three-storey semi-detached townhouse offers contemporary family living across 939 sqft. The open-plan kitchen-diner with patio doors opens onto an enclosed rear garden, while the integral garage and double driveway provide secure off-street parking. The living room and principal bedroom are generous for the house size, and there are three bathrooms spread across the floors — convenient for busy households.
Built between 2007–2011, the home benefits from cavity wall insulation, gas central heating and double glazing, so running costs are likely to be reasonable. The finish is immaculate throughout with a bright fitted kitchen and integrated appliances, ready for immediate occupation with minimal works required. Local amenities, good primary and secondary schools, and fast broadband make this a practical choice for families or professionals.
Important considerations: the plot and overall footprint are modest, so outdoor space is limited and the garden is small. The property sits in an area with higher recorded crime rates; prospective buyers should check local statistics and security options. Freehold tenure is straightforward, but removing or altering the integral garage or further expanding will be restricted by plot size.
Overall this is a well-presented, low-maintenance family home in a sought-after location. It suits buyers wanting modern, move-in-ready accommodation and convenient parking, but those needing larger gardens or greater privacy should note the smaller plot and local crime profile.
4 bedroom end of terrace house for sale in Davy Road, Allerton Bywater, WF10 2EU, WF10 — £300,000 • 4 bed • 2 bath • 1253 ft²
4 bedroom town house for sale in Warren House Road, Allerton Bywater, CASTLEFORD, WF10 — £260,000 • 4 bed • 2 bath • 954 ft²
4 bedroom semi-detached house for sale in Lapwing Close, Allerton Bywater, Castleford, WF10 — £250,000 • 4 bed • 2 bath • 776 ft²
3 bedroom town house for sale in Haigh Moor Way, Castleford, West Yorkshire, WF10 — £275,000 • 3 bed • 1 bath • 978 ft²
4 bedroom semi-detached house for sale in Ward Road, Castleford, WF10 — £280,000 • 4 bed • 2 bath • 1315 ft²
3 bedroom town house for sale in Victoria Street, Allerton Bywater, Castleford, WF10 — £175,000 • 3 bed • 1 bath • 905 ft²










































































