**Standout Features:**
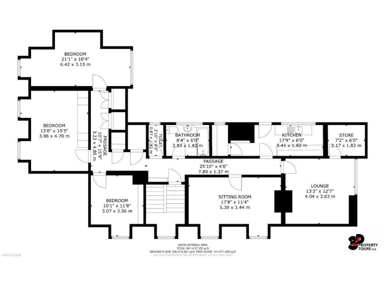
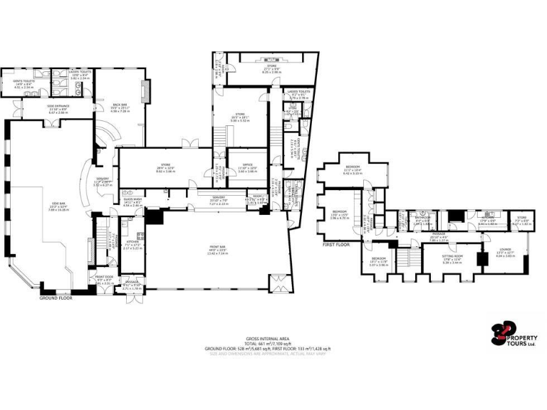
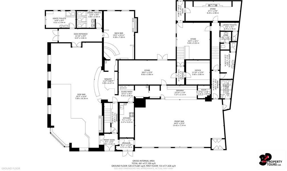
- Substantial two-storey semi-detached pub on a large 0.467-acre plot
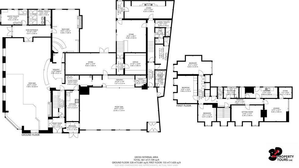
- Approximately 7,109 sq ft of flexible commercial space with significant redevelopment potential
- Located in a densely populated residential area, just 4 miles from Birmingham city center
- Corner plot with parking for 12 vehicles and expansive outdoor garden area
- Includes owner accommodation with multiple bedrooms and communal living spaces
**Summary:**
The Great Western, a spacious and strategically positioned pub situated at 10 Yardley Road in Acocks Green, presents a unique opportunity for local licensed operators, developers, and investors. Sprawling over 7,109 square feet, this property boasts a wealth of communal areas including a vibrant bar, lounge, and snug, alongside essential ancillary spaces like beer stores and a catering kitchen. The expansive 0.467-acre plot includes parking for around 12 vehicles, making it highly accessible for patrons.
While its established premises license facilitates immediate operations, the property also facilitates potential alternate use, subject to necessary consents—offering a promising avenue for innovative redevelopment. Future buyers will appreciate the property’s close proximity to retail amenities, schools, and direct transport links to Birmingham and Solihull. Please note that ongoing structural maintenance, as well as the high local crime rate, are factors to consider.
This prime commercial space is a rare find in a rapidly developing area—don’t miss your chance to invest in its future!
Pub for sale in Midland, 526 Bearwood Road, Smethwick, West Midlands, B66 4BE, B66 — £375,000 • 1 bed • 1 bath • 1995 ft²
Pub for sale in Mossvale Close, Cradley Heath, West Midlands, B64 — £350,000 • 3 bed • 1 bath
Pub for sale in M-528769 - Bar/Restaurant Opportunity, Westside Two, Birmingham B1 1LW, B1 — £450,000 • 1 bed • 1 bath • 1992 ft²
Pub for sale in Former Player's Bar, 240 Broad Street, Birmingham, B1 — £2,500,000 • 1 bed • 1 bath • 29293 ft²
Pub for sale in Market Street, B78 — £465,000 • 13 bed • 1 bath
Pub for sale in The Junction Inn, Birmingham Street, Oldbury, West Midlands, B69 — £225,000 • 1 bed • 1 bath • 1852 ft²






























