Move-in ready terraced house with garage, close to schools and local amenities.
Ready-to-move-in after recent redecoration and new floor coverings
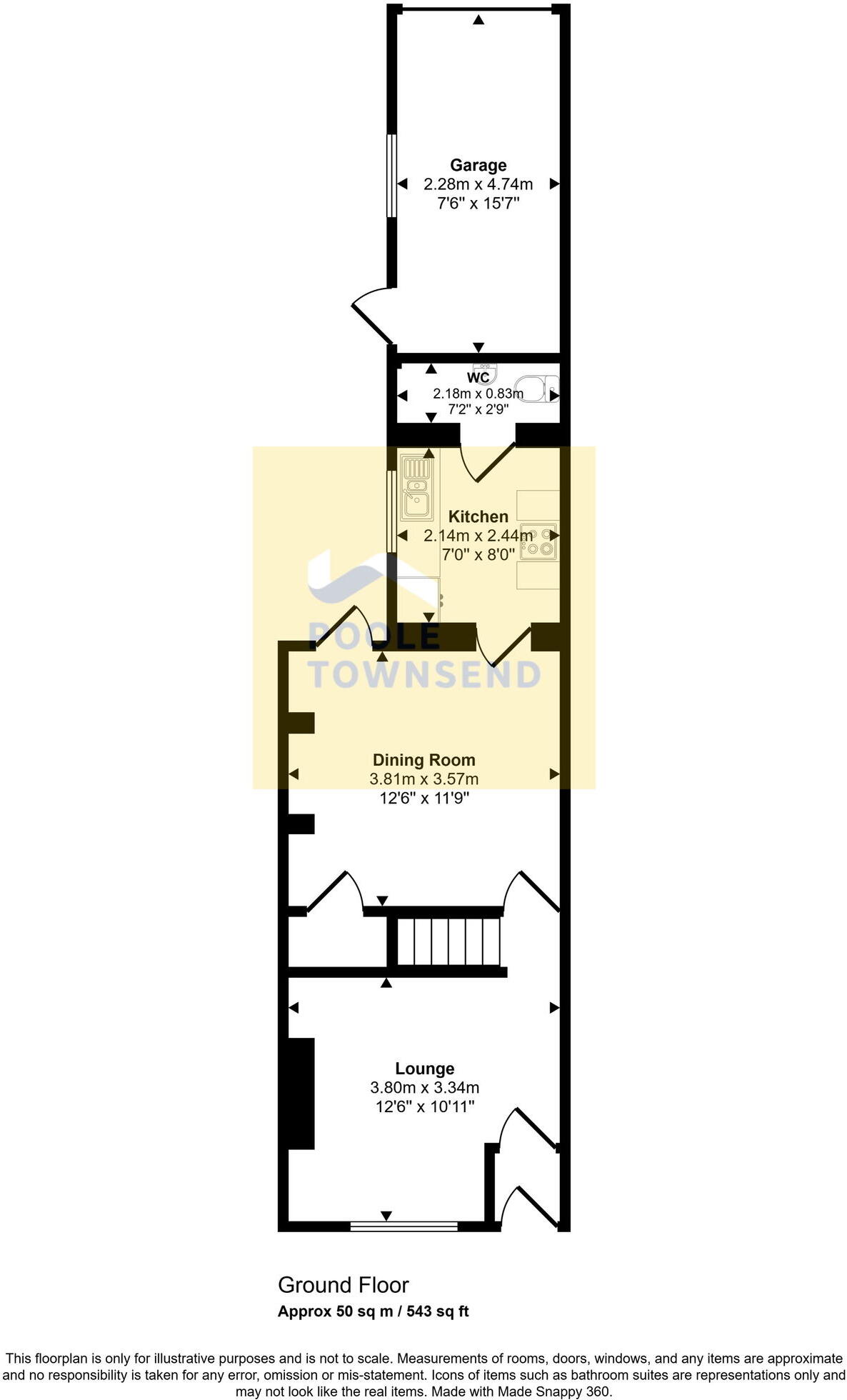
Two reception rooms plus compact fitted kitchen and cloakroom
UPVC double glazing throughout; attached garage included
Small decked rear yard; limited outdoor/plot size
EPC rating E — expect modest energy efficiency
Structured info conflicts on heating: gas noted in text, data lists electric storage heaters
Cavity walls reported with no confirmed insulation (possible retrofit opportunity)
Chain free — suitable for quick completion
This attractively presented mid-terrace offers two reception rooms, two bedrooms and an attached garage — ready to move into after recent redecoration and new floor coverings. The layout is traditional and practical: living spaces to the front, kitchen and cloakroom to the rear, with a small decked yard for outdoor use. The property is offered chain-free and suits first-time buyers, couples or investors seeking immediate rental potential.
Practical features include UPVC double glazing throughout, modern fitted kitchen units with space for appliances, and a smart shower room. The house is compact but well organised, with useful under-stairs storage and a ground-floor WC/laundry area. Broadband and mobile signals are reported as fast and excellent respectively, and local schools and everyday amenities are within walking distance.
Buyers should note some material points to check: the Energy Performance Certificate is band E; external walls are cavity-built with no confirmed insulation; and the plot is small with limited outdoor space. The listing materials reference gas central heating, while structured data records electric storage heaters as the main heating — prospective purchasers must verify the actual heating fuel and system prior to exchange.
Overall this home offers immediate occupation and low council tax running costs, combined with strong local amenity access. It will reward buyers who value a ready-to-live-in, characterful terrace and who are comfortable with a compact rear yard and a modest EPC rating.
2 bedroom terraced house for sale in Gloucester Street, Barrow-in-Furness, LA13 9RY, LA13 — £79,950 • 2 bed • 1 bath • 753 ft²
2 bedroom terraced house for sale in Queen Street, Barrow-in-furness, LA14 5NX, LA14 — £115,000 • 2 bed • 1 bath • 793 ft²
2 bedroom terraced house for sale in Smeaton Street, Barrow-in-furness, LA14 2EB, LA14 — £79,950 • 2 bed • 1 bath • 926 ft²
2 bedroom terraced house for sale in Lorne Road, Barrow-In-Furness, LA13 — £160,000 • 2 bed • 1 bath • 862 ft²
2 bedroom terraced house for sale in Florence Street, Barrow-in-furness, LA14 2DB, LA14 — £110,000 • 2 bed • 1 bath • 974 ft²
2 bedroom terraced house for sale in Queen Street, Barrow-in-furness, LA14 5NY, LA14 — £99,950 • 2 bed • 1 bath • 713 ft²






























































