Move-in ready three-bedroom home with garage, close to schools and coast.
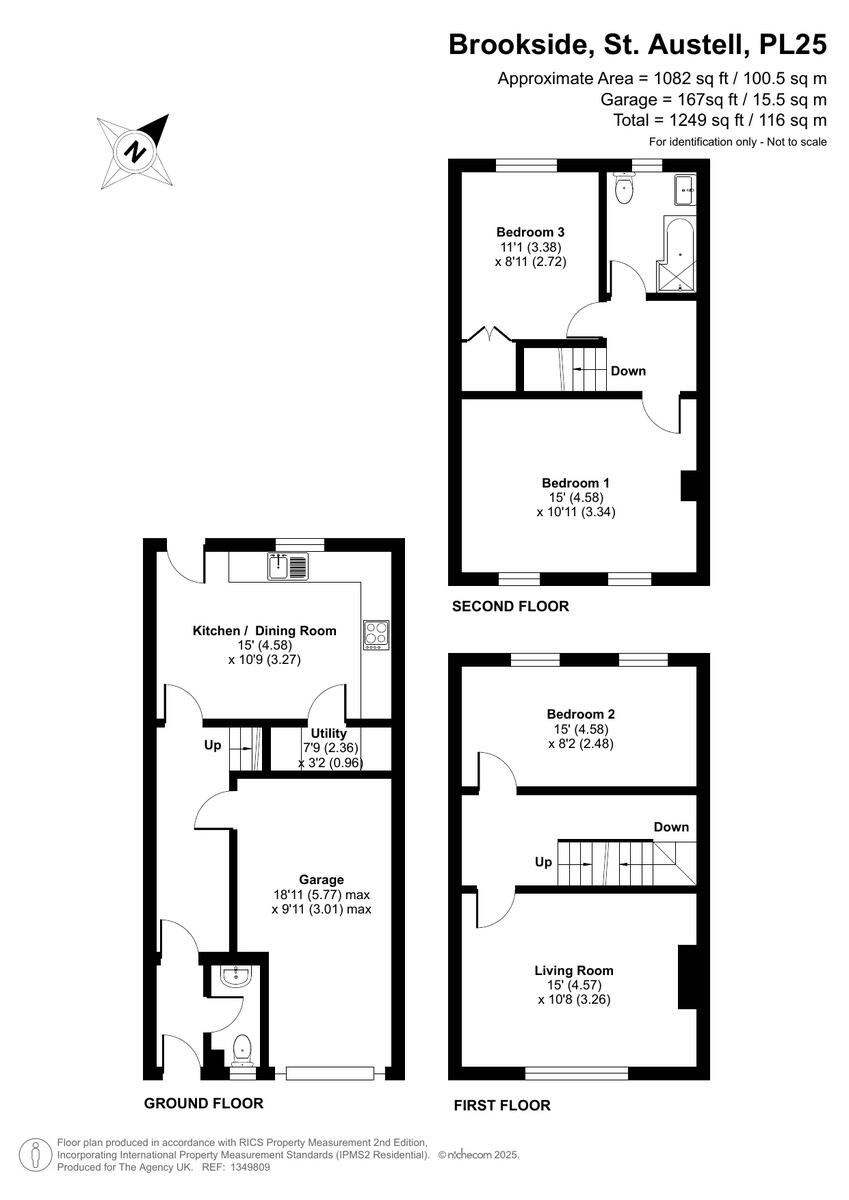
Three-storey townhouse with three generous bedrooms
This well-presented three-storey townhouse in Brookside offers flexible family living in a convenient St Austell location. The bright first-floor lounge with a feature bow window and a modern kitchen/diner create a comfortable, sociable heart to the home, while three generous bedrooms provide room for children, guests, or a home office.
Practical extras include an integral garage with electric roller door, power and light, driveway parking and a low-maintenance enclosed rear garden with decked seating. The property benefits from uPVC double glazing, gas central heating and fast broadband — useful for home working and everyday life.
Notable considerations: there is a single family bathroom serving three bedrooms, and the plot is relatively small with limited outdoor space. Any conversion of the garage would be subject to planning consent. Overall, this freehold townhouse offers a move-in ready option for families or professionals seeking easy access to schools, shops, the town centre and nearby beaches.
3 bedroom semi-detached house for sale in Boundary Close, St. Austell, PL25 — £325,000 • 3 bed • 2 bath • 850 ft²
3 bedroom terraced house for sale in The Green, St. Austell, Cornwall, PL25 — £230,000 • 3 bed • 3 bath • 593 ft²
4 bedroom semi-detached house for sale in Aglets Way, St. Austell, Cornwall, PL25 — £325,000 • 4 bed • 2 bath
3 bedroom detached house for sale in Larcombe Road, St Austell, Cornwall, PL25 — £270,000 • 3 bed • 1 bath • 862 ft²
3 bedroom terraced house for sale in Phernyssick Road, St Austell, PL25 — £230,000 • 3 bed • 1 bath • 827 ft²
3 bedroom terraced house for sale in Jadeana Court, St. Austell, PL25 — £180,000 • 3 bed • 2 bath • 861 ft²






















































