Contemporary family home with energy-saving tech and generous outdoor space.
Upgraded open-plan kitchen with French doors to garden
Principal bedroom with en suite shower room
Photovoltaic solar panels and EV charger installed
Garage plus two dedicated parking spaces
Large private plot and landscaped communal green space
NHBC warranty and insurance policy included
Very slow broadband speeds in this area
Tenure not specified on the listing
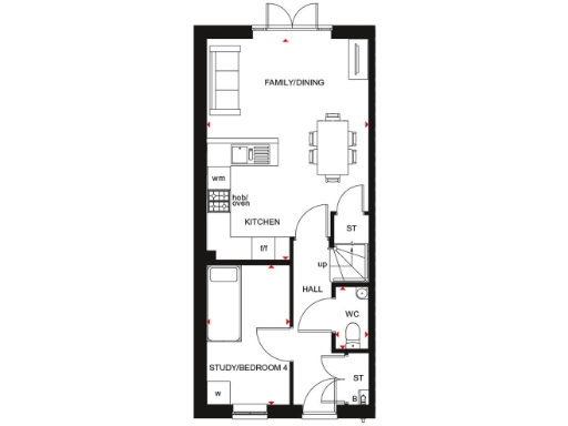
This four-bedroom semi-detached home in Wichel Fields is a contemporary new-build designed for growing families who value low-running costs and practical space. The ground floor offers an open-plan upgraded kitchen with French doors to the garden, plus a flexible fourth bedroom or home office. The first-floor principal bedroom includes an en suite and there are two further double bedrooms and a family bathroom on the top floor.
Built with energy-saving features — photovoltaic solar panels and a dedicated EV charger — the house should deliver lower fuel bills and good environmental credentials. It comes with an NHBC warranty and an insurance policy for buyer reassurance, plus a single garage and two parking spaces. A large private plot and landscaped communal greens give a suburban feel despite close local amenities such as Waitrose and bus links.
Practical points to note: broadband speeds are reported as very slow in this area, and the listing does not confirm tenure. The developer is offering a £20,849 deposit contribution or part-exchange, and the kitchen upgrade is included. Overall, the house is well suited to families seeking a modern, low-maintenance home with scope to personalise interiors over time.
4 bedroom semi-detached house for sale in Mill Lane,
Swindon,
SN1 7BX, SN1 — £416,995 • 4 bed • 1 bath • 1065 ft²
3 bedroom semi-detached house for sale in Mill Lane,
Swindon,
SN1 7BX, SN1 — £388,995 • 3 bed • 1 bath • 975 ft²
3 bedroom semi-detached house for sale in Mill Lane,
Swindon,
SN1 7BX, SN1 — £382,995 • 3 bed • 1 bath • 975 ft²
3 bedroom semi-detached house for sale in Mill Lane,
Swindon,
SN1 7BX, SN1 — £404,995 • 3 bed • 1 bath • 881 ft²
2 bedroom semi-detached house for sale in Mill Lane,
Swindon,
SN1 7BX, SN1 — £303,995 • 2 bed • 1 bath • 729 ft²
3 bedroom semi-detached house for sale in Mill Lane,
Swindon,
SN1 7BX, SN1 — £404,995 • 3 bed • 1 bath • 881 ft²










































