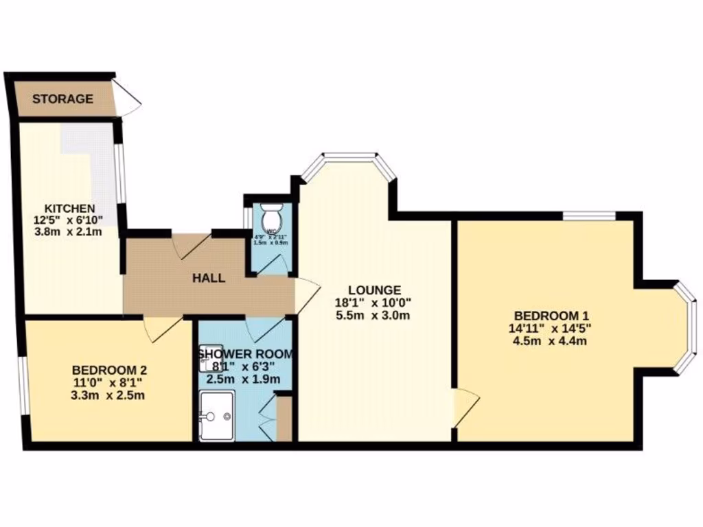
**Standout Features:**
- Bright and airy two-bedroom ground floor flat
- Private entrance and enclosed garden with stream views
- Recently re-fitted wet room for modern functionality
- Convenient location near local amenities and Ilfracombe harbour
- Share of freehold with no restrictions on rentals or pets
- Affordable service charge of £50/month, includes building insurance
**Notable Concerns:**
- Potential structural issues due to age (constructed before 1900)
- Broadband speeds are slow in the area
Nestled in the heart of Ilfracombe, this charming two-bedroom ground floor flat presents an exceptional blend of period charm and modern convenience. Enjoy your own private entrance leading to a cozy outdoor haven complete with a garden and tranquil stream views—ideal for relaxation or entertaining. The spacious living area is complemented by a well-appointed kitchen and a stylish wet room, making it perfect for both families and couples seeking comfort and flexibility.
This property is especially appealing for first-time buyers or investors, thanks to its share of the freehold and access to long-term rental options without restrictions—opening the door to lucrative investment potential. Despite its quaint lover, the flat has been well-maintained with double glazing and gas central heating, ensuring efficiency while offering scope for personal touches and possible renovations. Priced attractively at £166,000, don’t miss out on this rare opportunity to own a slice of Ilfracombe living with easy access to amenities, schools, and beautiful coastal views. Early viewing is highly recommended as properties with such versatile appeal are quick to attract interest!
1 bedroom flat for sale in Brookfield Place, Ilfracombe, Devon, EX34 — £100,000 • 1 bed • 1 bath • 339 ft²
2 bedroom flat for sale in Market Street, Ilfracombe, EX34 — £170,000 • 2 bed • 1 bath • 469 ft²
2 bedroom flat for sale in Wilder Road, Ilfracombe, Devon, EX34 — £142,950 • 2 bed • 1 bath • 614 ft²
2 bedroom flat for sale in High Street, Ilfracombe, Devon, EX34 — £118,000 • 2 bed • 1 bath • 591 ft²
3 bedroom apartment for sale in Oxford Grove, Ilfracombe, Devon, EX34 — £120,000 • 3 bed • 2 bath • 614 ft²
2 bedroom flat for sale in Oxford Park, Ilfracombe, Devon, EX34 — £180,000 • 2 bed • 1 bath • 966 ft²














































