Private cul-de-sac home with sunny mature gardens and garage.
Terrific uninterrupted sea views across the bay and The Lizard peninsula
Set on a small private cul-de-sac close to Mousehole harbour, this detached two-bedroom home offers genuine coastal living with panoramic sea views. The house is well cared for but dated, presenting a clear opportunity to update, extend (subject to consents) and reconfigure to suit a downsizer or someone seeking a low-traffic village base.
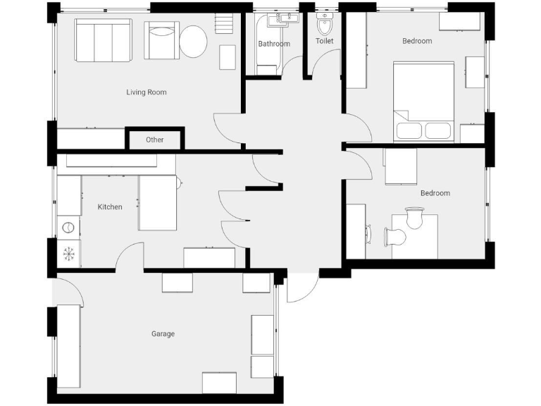
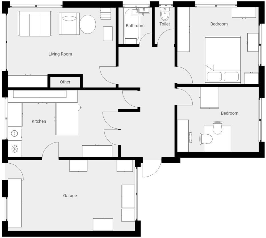
The layout includes a living room and kitchen that both face the bay, a ground-floor dining room that can serve as a third bedroom, and a first-floor study/landing with scope to create an impressive principal suite or a first-floor living space to maximise the outlook. A single garage and driveway provide generous parking for this location.
Outside, mature, private gardens capture plenty of sun and offer room for landscaping or a sympathetic extension. The property is sold freehold with no onward chain, allowing a purchaser to move quickly to renovate and personalise.
Important considerations: the house is described as needing renovation and is a little dated throughout; buyers should factor updating costs and check planning for any extensions. EPC is to be confirmed and council tax sits at Band D.
3 bedroom detached house for sale in Mousehole, West Cornwall, TR19 — £850,000 • 3 bed • 1 bath • 1595 ft²
3 bedroom detached house for sale in Marcwheal Mews, Mousehole, TR19 6QP, TR19 — £434,990 • 3 bed • 1 bath • 1129 ft²
3 bedroom semi-detached house for sale in Mousehole, Penzance, Cornwall, TR19 — £750,000 • 3 bed • 2 bath • 1675 ft²
3 bedroom terraced house for sale in Southview Terrace, Mousehole, TR19 6QJ, TR19 — £515,000 • 3 bed • 1 bath • 808 ft²
2 bedroom house for sale in Foxes Lane, Mousehole, TR19 — £425,000 • 2 bed • 1 bath • 1090 ft²
3 bedroom terraced house for sale in Wellington Place - Mousehole - Traditional 3 Bedroom Cottage, TR19 — £269,500 • 3 bed • 1 bath • 721 ft²


















































































































