Chain-free 3-bed with long garden and clear extension potential.
Chain-free mid-terrace family house, approx. 866 sqft
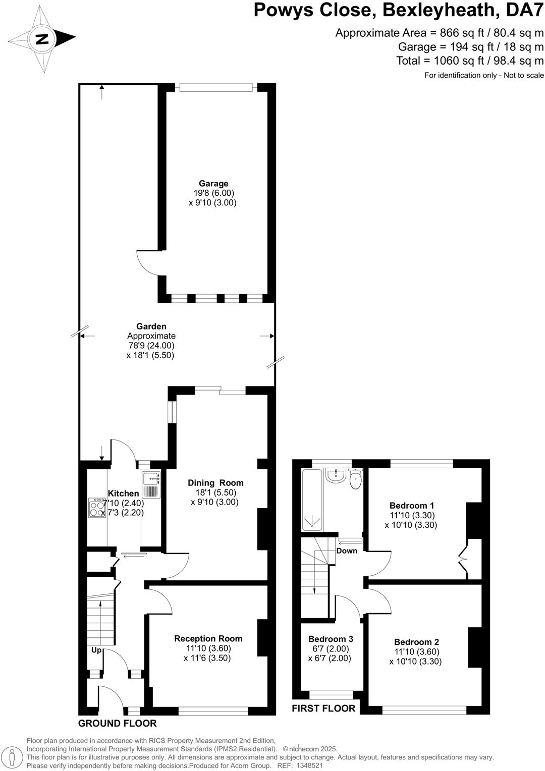
A mid-terraced 1930s family home on Powys Close offering practical space and clear improvement potential. The ground floor includes a cosy front reception and an impressive dining room created by an older rear extension; sliding doors open to an approx. 80ft garden and a detached garage accessed via the service lane. The property totals about 866 sqft internally and includes two double bedrooms, a generous single and a family bathroom.
This house will suit a family looking to personalise and add value. There is scope to create a large through lounge or an open-plan kitchen-diner by knocking through the reception and dining areas, and many neighbours have extended. The garage could become a summerhouse or converted workspace (subject to approvals). It is chain free, close to local parks, shops and a choice of schools, with Abbey Wood station about 1.5 miles away (Elizabeth line connections).
Be aware of key upkeep and energy issues: the EPC is rated E, the solid brick walls are assumed uninsulated and the interior would benefit from modernisation throughout. Heating is gas boiler with radiators and double glazing is older. These are realistic, solvable items but factor into renovation costs and timelines. Council tax band D.
Overall this is a solid, well-located family plot with decent scope to extend and modernise — attractive to growing families or buyers seeking a renovation project with upside.
3 bedroom terraced house for sale in Church Road, Bexleyheath, DA7 — £450,000 • 3 bed • 1 bath • 1360 ft²
3 bedroom terraced house for sale in Cartmel Road, Bexleyheath, DA7 — £425,000 • 3 bed • 1 bath • 856 ft²
3 bedroom end of terrace house for sale in Clare Way, Bexleyheath, Kent, DA7 — £325,000 • 3 bed • 1 bath • 785 ft²
3 bedroom semi-detached house for sale in Pembury Road, Bexleyheath, DA7 — £475,000 • 3 bed • 1 bath • 1066 ft²
5 bedroom semi-detached house for sale in Woolwich Road, Bexleyheath, DA7 — £650,000 • 5 bed • 2 bath • 1093 ft²
3 bedroom semi-detached house for sale in The Drive, Bexley, Kent, DA5 — £625,000 • 3 bed • 1 bath • 1187 ft²






















































































