Spacious layout, large plot and excellent school access in a quiet cul-de-sac.
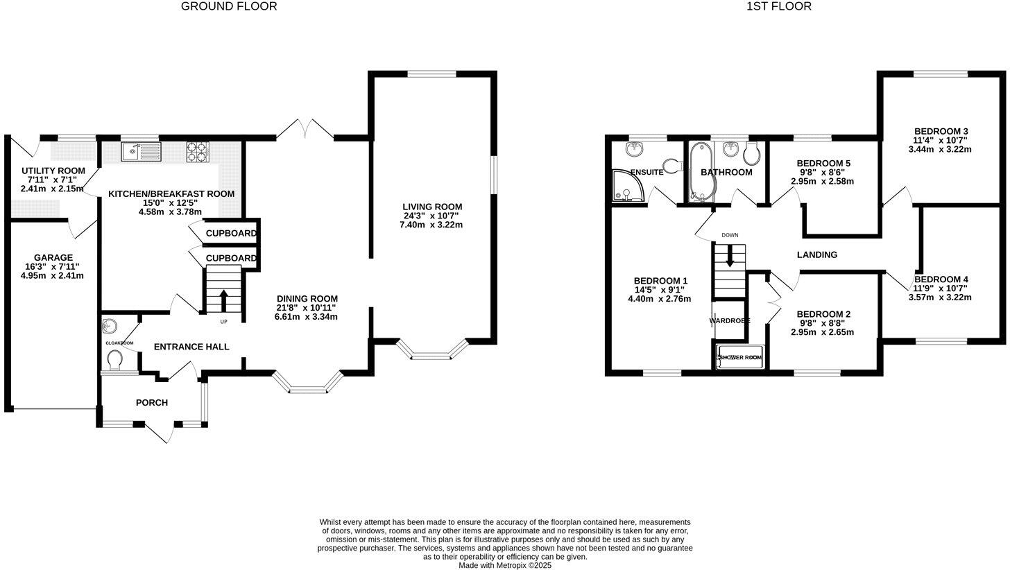
Five bedrooms with principal en suite and second bedroom shower access
Large plot and sunny rear garden backing onto a communal green
Attached single garage plus wide off-street driveway parking for multiple cars
Open-plan reception rooms, separate utility room and downstairs cloakroom
Constructed 1967–1975; double glazing added post-2002, EPC C (71)
Some areas require modernization; opportunity to add value through updating
Council Tax Band E; broadband speeds reported as slow in the area
No flood risk; located in a quiet cul-de-sac close to top-rated primary schools
Set at the end of a quiet cul-de-sac in Kempshott, this five-bedroom detached home suits growing families seeking space and school proximity. The house benefits from an extended footprint, an attached single garage, wide driveway parking and a sunny rear garden that backs onto a large communal green — ideal for safe children's play and easy outdoor access.
Internally the layout is flexible with open-plan reception rooms, a modern-feel kitchen with walk-in pantry, separate utility and a downstairs cloakroom. The principal bedroom has an en suite and a second bedroom has access to a shower room; the family bathroom serves the remaining bedrooms. Large windows and dual-aspect reception rooms provide good natural light throughout.
The property dates from the 1970s and has double glazing added post-2002 and an EPC rating of C (71). While well maintained, parts of the house show signs of 1970s/1990s styling and would benefit from updating to match contemporary finishes — this presents clear scope to personalise and add value. Note the council tax band E and generally slow local broadband speeds.
Overall this freehold house offers a large plot, versatile accommodation and excellent access to highly regarded local primary schools. It will appeal to families who prioritise outdoor space, parking and school run convenience, and who are willing to carry out cosmetic modernisation to realise the property's full potential.
3 bedroom detached house for sale in Swallow Close, Basingstoke, RG22 — £475,000 • 3 bed • 2 bath • 1469 ft²
4 bedroom detached house for sale in Rydal Close, Basingstoke, RG22 5JW, RG22 — £575,000 • 4 bed • 2 bath • 1591 ft²
4 bedroom detached house for sale in Derwent Road, Basingstoke, RG22 — £645,000 • 4 bed • 2 bath • 1532 ft²
5 bedroom detached house for sale in Basingstoke, Hampshire, RG22 — £1,250,000 • 5 bed • 3 bath • 2988 ft²
4 bedroom detached house for sale in Honeysuckle Close, Basingstoke Rg22 5RH, RG22 — £600,000 • 4 bed • 2 bath • 1545 ft²
3 bedroom semi-detached house for sale in Derwent Road, Basingstoke RG22 5JF, RG22 — £475,000 • 3 bed • 1 bath • 1376 ft²


















































































