Low-maintenance living with 24-hour emergency support and communal amenities.
Second-floor two-bedroom over-55s apartment with field views
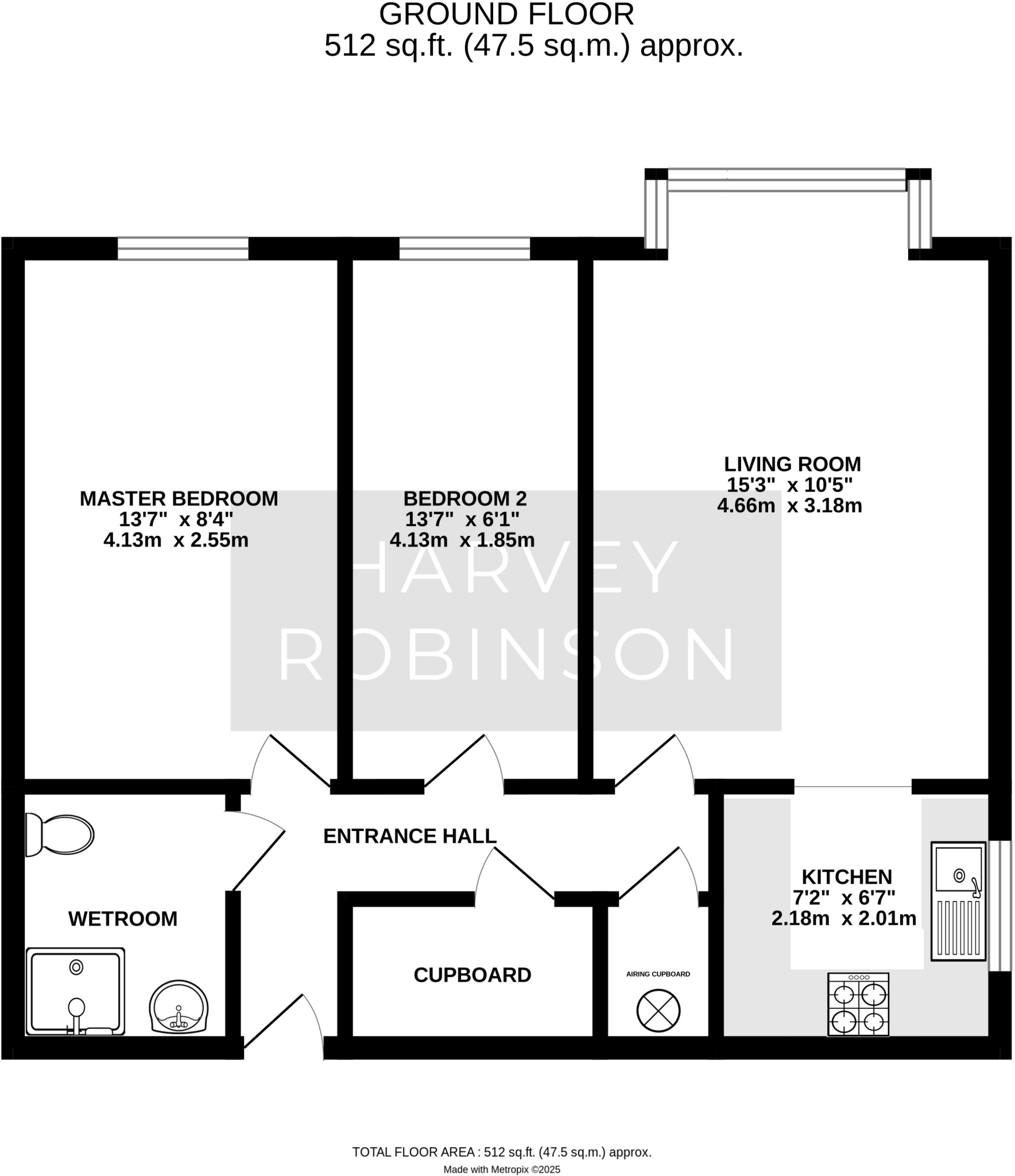
A compact second-floor apartment in the Millfield Court over-55s development, ideal for someone seeking low-maintenance, independent living with on-site support. The two-bedroom home benefits from a bright living room facing pleasant communal greens and distant field views, plus a modern wet room for accessible bathing.
Residents have the reassurance of a 24-hour emergency care line and communal facilities including maintained gardens, a communal hall, laundry room and off-street parking. The property is offered chain-free, making it straightforward to move in quickly.
There are practical considerations: the overall internal area is small (approx 512 sq ft) and the kitchen dates from the 1970s–80s and will need updating to suit modern tastes. Heating is by electric storage heaters and the property carries an average service charge of around £3,000 per year. The lease has about 86 years remaining.
This apartment will suit downsizers or retirees who prioritise community, on-site support and low garden upkeep, and who are comfortable with a smaller, leasehold flat that needs some cosmetic updating.
1 bedroom apartment for sale in Brampton Road, Huntingdon, Cambridgeshire, PE29 — £90,000 • 1 bed • 1 bath • 443 ft²
2 bedroom retirement property for sale in The Views, George Street, PE29 — £110,000 • 2 bed • 1 bath • 573 ft²
1 bedroom retirement property for sale in High Street, Huntingdon, PE29 — £160,000 • 1 bed • 1 bath • 496 ft²
1 bedroom ground floor flat for sale in Brampton Road, Millfield House Millfield Park Brampton Road, PE29 — £110,000 • 1 bed • 1 bath • 538 ft²
2 bedroom apartment for sale in Crosshall Road, Eaton Ford, St. Neots, Cambridgeshire, PE19 — £260,000 • 2 bed • 1 bath • 635 ft²
1 bedroom apartment for sale in Old Market Court, St. Neots, PE19 — £178,000 • 1 bed • 1 bath • 485 ft²






























