Refurbished dormer home near top schools and the University.
Three-bedroom dormer bungalow with ensuite in converted attic
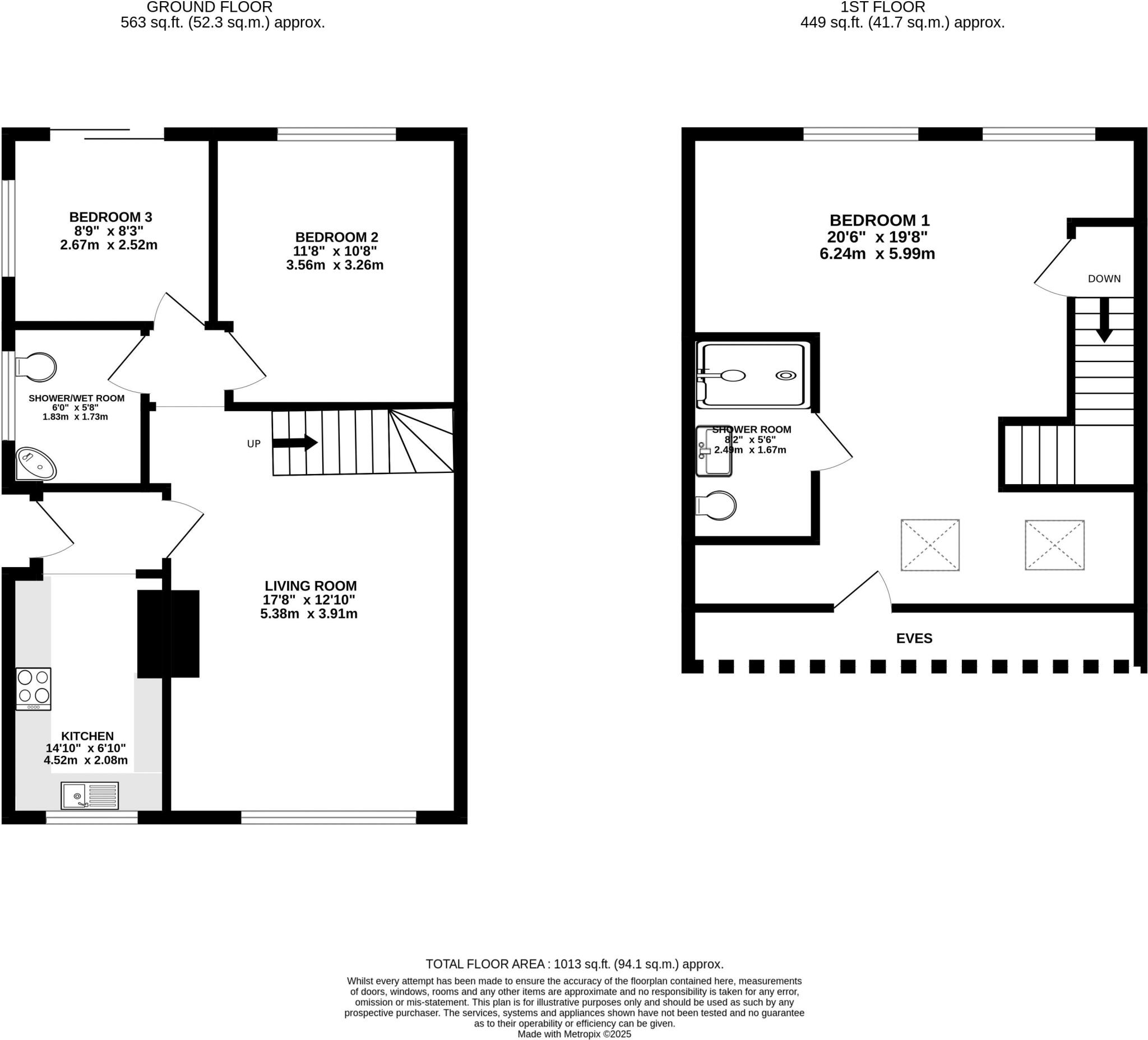
Set in a quiet Fulford cul-de-sac, this semi-detached dormer bungalow offers practical family living with contemporary style. The ground floor provides two adaptable bedrooms, a modern wet room and a bright living room that flows from a newly fitted kitchen. Upstairs is a large converted attic principal bedroom with ensuite and skylights, giving a light, private retreat.
Outside, the property benefits from a long driveway, detached garage and an enclosed rear garden with paved patio — ideal for parking, hobbies or low-maintenance entertaining. Solar panels and recent refurbishments mean the house is ready to move into and suits commuters, university staff and families wanting nearby top-rated schools.
Notable positives include the option to extend to the rear and overall turnkey presentation. Be aware the EPC is rated D and internal room sizes are average for this style, so there is limited living space compared with larger family houses. Sold freehold and chain free, this property offers convenient access to York, the outer ring road and local amenities.
3 bedroom semi-detached bungalow for sale in Heath Croft, York, YO10 — £325,000 • 3 bed • 1 bath • 823 ft²
4 bedroom detached house for sale in Broadway, Fulford, York, YO10 4JY, YO10 — £795,000 • 4 bed • 3 bath • 3437 ft²
3 bedroom semi-detached bungalow for sale in The Cranbrooks, Wheldrake, York, YO19 — £345,000 • 3 bed • 2 bath • 1013 ft²
3 bedroom bungalow for sale in Malvern Avenue, York, YO26 — £460,000 • 3 bed • 2 bath • 1284 ft²
3 bedroom bungalow for sale in Hill View, York, YO31 — £270,000 • 3 bed • 1 bath • 649 ft²
3 bedroom detached house for sale in Cherry Wood Crescent, Fulford, York YO19 — £354,950 • 3 bed • 1 bath • 1000 ft²






















































































