Compact characterful terrace with private garden and fast broadband — ideal first purchase.
Two double bedrooms and a refitted bathroom
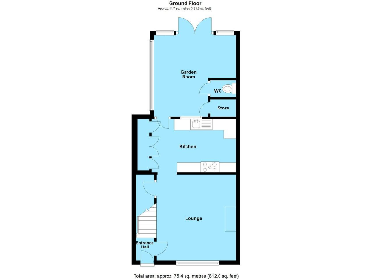
This two-bedroom Victorian terraced house on Council Street offers a compact, characterful starter home within walking distance of Lutterworth amenities. The property combines period features with practical updates — a refitted bathroom, double glazing (installed before 2002) and gas central heating — making it ready to occupy while still offering scope for personalisation.
The garden and paved patio deliver a private outdoor space rare for similar town-fringe properties, and the small low-maintenance foregarden frames the entrance. Broadband is fast and mobile signal excellent, supporting home working or streaming without compromise. Nearby schools are well-regarded, and local shops, bus links and supermarkets are all within easy reach.
Buyers should note a few important issues: the house has solid brick walls with no built-in insulation assumed, double glazing is older, and the plot is small. Crime in the immediate area is recorded as high, so consider security measures. Council tax is very cheap and the property is freehold, making running costs competitive for a first home or buy-to-let.
Overall this property is well suited to first-time buyers or those seeking a manageable renovation project with genuine living space, a private garden, and good digital connectivity in a convenient Lutterworth location.
2 bedroom end of terrace house for sale in Council Street, Lutterworth, LE17 — £195,000 • 2 bed • 1 bath • 718 ft²
2 bedroom semi-detached house for sale in Spencer Road, Lutterworth, LE17 — £210,000 • 2 bed • 1 bath • 625 ft²
2 bedroom terraced house for sale in Stapleton Lane, Barwell, LE9 — £175,000 • 2 bed • 1 bath • 840 ft²
2 bedroom end of terrace house for sale in Granville Road, Hinckley, LE10 0PP, LE10 — £220,000 • 2 bed • 1 bath • 818 ft²
2 bedroom terraced house for sale in Orchard Road, Lutterworth, LE17 — £200,000 • 2 bed • 1 bath • 638 ft²
2 bedroom terraced house for sale in The Lawns, Hinckley, LE10 — £200,000 • 2 bed • 1 bath • 889 ft²






























































