Large four-bedroom detached house with private garden and excellent commuter links..
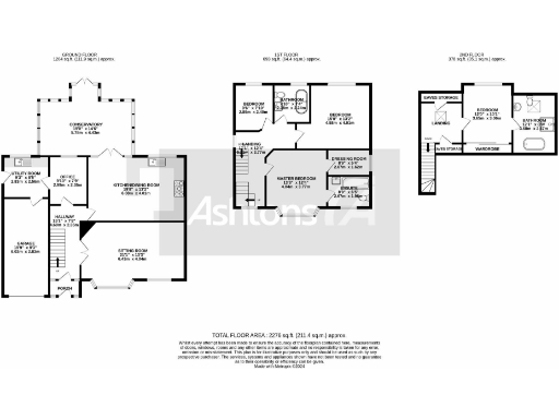
Detached four-bedroom family home with en suite and dressing room
Not overlooked to front or rear; large private plot
Open-plan kitchen/diner, conservatory and separate office space
Driveway parking for multiple cars; well maintained rear garden
Built 1900–1929; cavity walls assumed uninsulated (upgrade potential)
Broadband speeds are slow — may affect heavy home working
Double glazing installed since 2002; mains gas boiler heating
Total internal area approx. 1,851 sq ft; freehold tenure
Set on a large plot in an established suburban area, this four-bedroom detached house blends period bones with contemporary living. The ground floor offers a sitting room, open-plan kitchen/diner, conservatory and a dedicated office — practical for family life and home working. The well-maintained rear garden and multiple off-street parking spaces support active family routines and entertaining.
Sleeping accommodation includes a master bedroom with dressing room and en suite, plus two further bathrooms to reduce morning queues. The house is not overlooked at front or rear, giving a sense of privacy unusual for the area. Total internal space is around 1,851 sq ft, suitable for growing families who need flexible rooms.
Practical points to note: the property was built c.1900–1929 and has cavity walls assumed to be without insulation, and broadband speeds in the area are slow — both relevant if you plan energy upgrades or heavy remote working. Heating is mains gas with a boiler and radiators; glazing has been upgraded since 2002. Council tax band is moderate and flood risk is low.
This home suits buyers wanting a roomy, well-located family house with good schools nearby and easy access to Liverpool and Manchester. There is scope for targeted improvement work (insulation, faster internet) to increase comfort and long-term value.
4 bedroom detached house for sale in Moss Lane, Windle, WA11 — £595,000 • 4 bed • 3 bath • 2342 ft²
4 bedroom semi-detached house for sale in Ecclesfield Road, Eccleston, WA10 — £350,000 • 4 bed • 2 bath • 1227 ft²
4 bedroom detached house for sale in Rivenmill Close, Widnes, WA8 — £330,000 • 4 bed • 3 bath • 1216 ft²
4 bedroom detached house for sale in Buckingham Avenue, Widnes, WA8 — £550,000 • 4 bed • 3 bath • 1765 ft²
4 bedroom detached house for sale in Heatherleigh, St. Helens, Merseyside, WA9 — £525,000 • 4 bed • 3 bath • 1935 ft²
4 bedroom detached house for sale in Lowther Crescent, St. Helens, WA10 — £415,000 • 4 bed • 3 bath • 1561 ft²


























































































































































































































