Chain-free family home with garage and enclosed garden in popular Ely location.
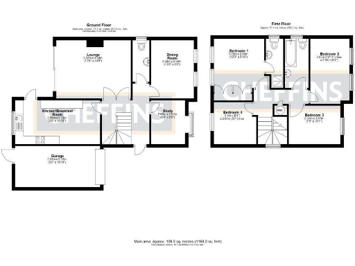
- Detached four-bedroom family house with ensuite to main bedroom
- Three reception rooms plus kitchen/breakfast room and study
- Driveway for two cars and single garage with power and light
- Enclosed rear garden with paved patio and mature borders
- Freehold and offered with no upward chain
- EPC rating C; double glazing install date unknown
- Council Tax Band E (above average) for this area
- Circa 1996–2002 build; some updating likely required
A spacious four-bedroom detached family home in a popular Ely neighbourhood, arranged over two storeys with three reception rooms and a kitchen/breakfast area. The ground floor provides flexible living space including lounge with patio doors to the rear garden, a separate dining room and a front-facing study — practical for working from home or children's homework. Bedroom one benefits from an ensuite; three further bedrooms share a family bathroom on the first floor.
Outside, the property sits on a decent plot with a driveway for two cars leading to a single garage (power and light connected). The rear garden is enclosed, mainly laid to lawn with a paved patio and mature borders — good for family play and summer entertaining. The house is offered freehold and chain-free, which can simplify a prompt move.
Practical information: the home was built circa 1996–2002, has mains gas central heating with a boiler housed in the garage, double glazing (install date unknown), an EPC rating of C and council tax band E. The location suits families: local primary and secondary schools are nearby and the setting is in a very low-crime, affluent neighbourhood with fast broadband and excellent mobile signal.
Notable drawbacks to consider: the property is average-sized internally (approx. 1,166 sq ft) and some elements — kitchen, bathrooms and general finishes — may show typical wear for a house of this age and could benefit from updating in places. The double glazing install date is not recorded and the EPC C indicates moderate energy performance compared with newer-build standards. Buyers should verify boiler age and servicing, and consider planned cosmetic or efficiency upgrades.
4 bedroom detached house for sale in Gateway Gardens, Ely, CB6 — £525,000 • 4 bed • 2 bath • 1559 ft²
4 bedroom detached house for sale in Columbine Road, Ely, CB6 — £500,000 • 4 bed • 2 bath • 1347 ft²
4 bedroom detached house for sale in Tayberry Close, Ely, CB6 — £550,000 • 4 bed • 2 bath • 1265 ft²
4 bedroom detached house for sale in Leicester Close, Ely, Cambridgeshire, CB6 — £495,000 • 4 bed • 2 bath • 1181 ft²
4 bedroom house for sale in Collier Close, Ely, CB6 — £590,000 • 4 bed • 3 bath • 1675 ft²
4 bedroom detached house for sale in Hills Lane, Ely, Cambridgeshire, CB6 — £450,000 • 4 bed • 1 bath • 1281 ft²






























































