Large detached chalet with double garage, big garden and flexible layout in peaceful Cowbit village.
Three double bedrooms, originally four-bedroom layout possible
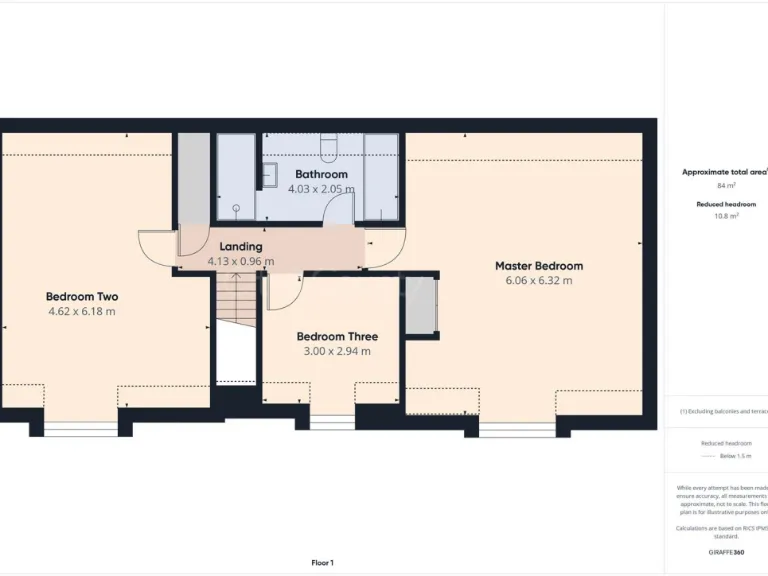
Set on a generous plot in the village of Cowbit, this detached chalet offers unusually large family accommodation and flexible living. The ground floor centres on a 25ft living room, adjoining sun lounge and a T-shaped kitchen-diner big enough for large family gatherings. Landscaped front and rear gardens, a wide driveway and an integral double garage complete a practical, attractive exterior.
Upstairs are three double bedrooms and a family bathroom; the house was originally built as a four-bedroom layout and could be reinstated if you need an extra room. The property is well maintained, with two modern bathrooms and double glazing; the EPC is a respectable C. Gas central heating, mains services and good mobile coverage make day-to-day living straightforward.
This home will suit families or buyers seeking generous rooms and outside space in a peaceful village setting. Note the property sits in a remoter community with slower fixed-wire broadband (up to c.43Mbps) — important if you work from home — and prospective buy-to-let purchasers should check local selective licensing rules. The house is freehold and has no known planning or conservation restrictions, offering clear scope for modest updating or reconfiguration.
Viewings are recommended for anyone looking for a substantial, versatile family home with easy parking, sizable entertaining space and quiet village life close to Spalding.
3 bedroom chalet for sale in The Pastures, Cowbit, Spalding, PE12 — £375,000 • 3 bed • 2 bath • 1841 ft²
4 bedroom detached house for sale in Backgate, Cowbit, Spalding, PE12 — £390,000 • 4 bed • 3 bath • 1131 ft²
5 bedroom detached house for sale in Backgate, Cowbit, Spalding, PE12 — £360,000 • 5 bed • 1 bath • 1525 ft²
4 bedroom detached house for sale in Vicarage Close, Cowbit, Spalding, PE12 — £350,000 • 4 bed • 2 bath • 1060 ft²
3 bedroom chalet for sale in Mallard Road, Low Fulney, PE12 — £325,000 • 3 bed • 1 bath • 1109 ft²
5 bedroom detached house for sale in Russell Drive, Cowbit, Spalding, Lincolnshire, PE12 — £365,000 • 5 bed • 2 bath • 2119 ft²














































































































