Ready-to-move-in house close to Wigan amenities and transport links.
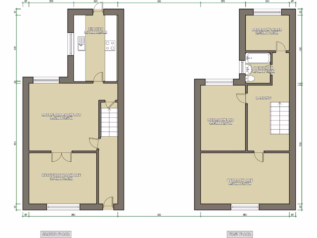
Three bedrooms in a mid-terrace Victorian property
Set on Margaret Street in Springfield, this three-bedroom mid-terrace offers a ready-to-move-in home for first-time buyers seeking a compact, characterful property close to Wigan. The house retains Victorian features — sash windows and fireplaces — combined with modern decor and a practical kitchen that leads to a low-maintenance rear yard.
Upstairs provides three well-proportioned bedrooms and a single family bathroom. The layout is traditional and straightforward, suitable for a couple or young family. Practical benefits include fast broadband and excellent mobile signal, low council tax, and no flood risk.
Buyers should note this is a leasehold property and the EPC rating is currently to be confirmed. The wider area is classed as very deprived with constrained local renters, so consider long-term neighbourhood investment trends if resale or rental income is important. Immediate maintenance appears minimal from the presentation, but traditional terraces can hide outdated services — budget for a survey to confirm wiring, plumbing and roof condition.
With good local amenities, several nearby primary and secondary schools, and easy access into Wigan, this home suits someone wanting an affordable entry onto the property ladder with scope to add value through targeted updates.
3 bedroom terraced house for sale in Hodges Street, Wigan, WN6 — £160,000 • 3 bed • 1 bath • 1076 ft²
3 bedroom terraced house for sale in Cecil Avenue, Springfield, Wigan, WN6 — £130,000 • 3 bed • 1 bath • 813 ft²
3 bedroom terraced house for sale in Stratford Street, Wigan, WN6 — £140,000 • 3 bed • 1 bath • 1241 ft²
2 bedroom terraced house for sale in Beech Hall Street, Springfield, Wigan, WN6 — £160,000 • 2 bed • 1 bath • 781 ft²
3 bedroom terraced house for sale in Kearsley Street, Springfield, WN6 7DN, WN6 — £115,000 • 3 bed • 1 bath • 929 ft²
3 bedroom terraced house for sale in Rylands Street, Wigan, WN6 — £170,000 • 3 bed • 1 bath • 1164 ft²






























































