Large family layout with garden, garage and strong local schools nearby.
Six bedrooms across three floors, including loft-converted room
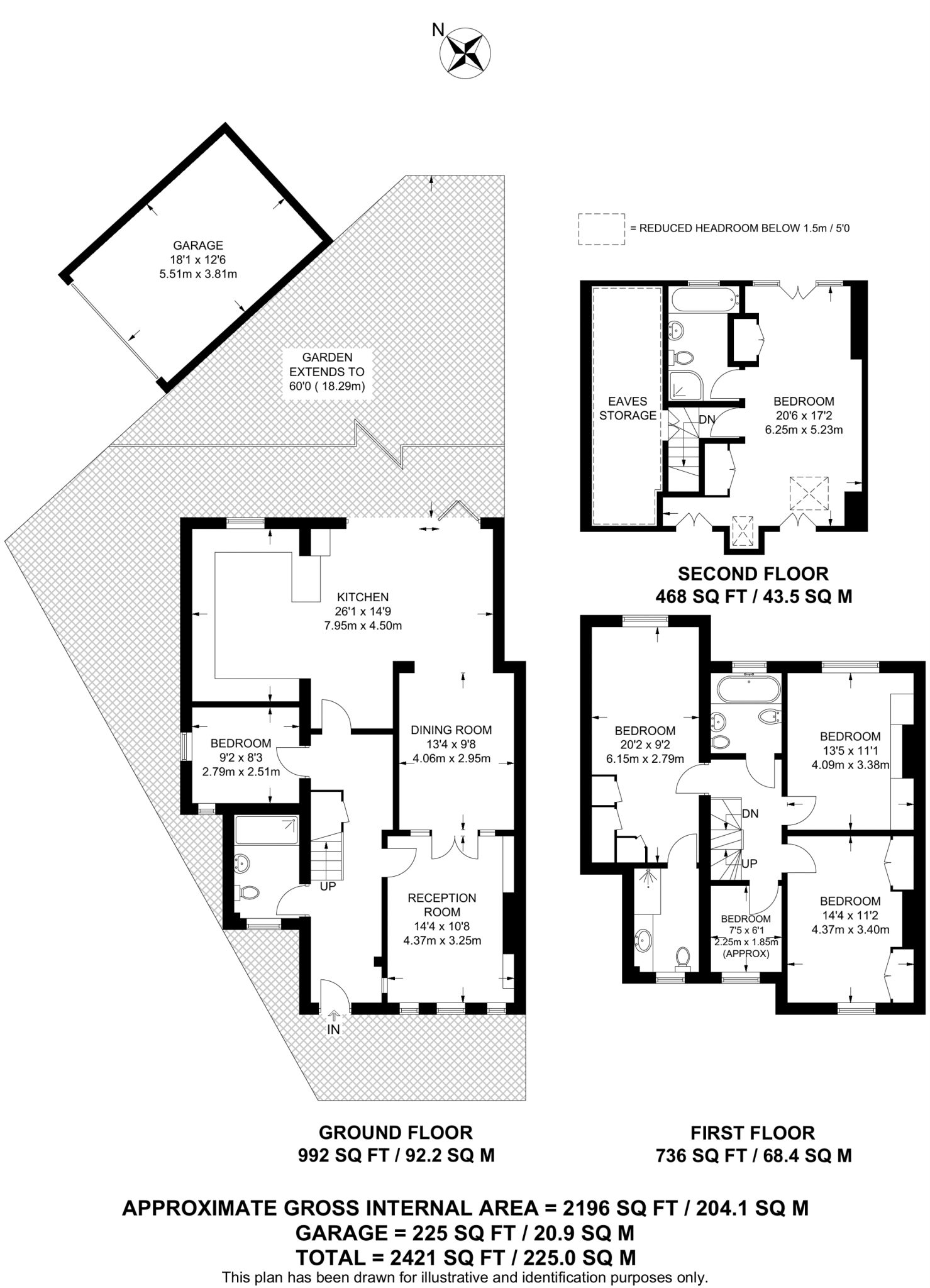
This substantial six-bedroom semi-detached home spans three floors and offers flexible living for growing families. The ground floor features a large open-plan eat-in kitchen and two separate reception rooms, while two bedrooms have en suite facilities and a loft-converted bedroom adds valuable extra space. A private rear garden leads to a garage and there is off-street parking to the front.
Practical details suit family life: four bathrooms, mains gas central heating with a boiler and radiators, double glazing (installed before 2002) and a sizeable 2,421 sq ft internal area. The property is freehold and sits on a large plot, close to several highly rated primary and secondary schools, local parks and good transport links into Central London.
Notable considerations: the house was built in the 1930s–1940s with solid brick walls that are assumed to lack cavity insulation, and the glazing is older, so buyers should expect some energy-efficiency upgrades may be needed. The area records higher-than-average local crime rates, which some buyers will want to factor into their decision.
Overall, this home offers roomy, adaptable accommodation and clear scope for improvement. It will suit families seeking space and convenient transport and education options, or buyers looking to add value through targeted refurbishment and modernisation.
6 bedroom semi-detached house for sale in Northwood Gardens, Greenford, UB6 — £759,000 • 6 bed • 4 bath • 1761 ft²
6 bedroom semi-detached house for sale in Wyresdale Crescent, Greenford, UB6 — £970,000 • 6 bed • 4 bath • 2481 ft²
6 bedroom semi-detached house for sale in East Lane, Wembley, HA0 — £1,200,000 • 6 bed • 4 bath • 2164 ft²
6 bedroom semi-detached house for sale in King Edwards Gardens, Ealing, London, W3 — £1,750,000 • 6 bed • 4 bath • 2363 ft²
6 bedroom end of terrace house for sale in Rushdene Crescent, Northolt, UB5 — £899,950 • 6 bed • 4 bath • 2096 ft²
6 bedroom semi-detached house for sale in Ditton Road, Norwood Road, UB2 — £885,000 • 6 bed • 3 bath • 2348 ft²










































































































































































