Spacious family home with conservatory and parking in a sought suburb.
Three bedrooms plus conservatory extension for extra living space
Private rear garden: patio and lawn, small low-maintenance plot
Ample off-street parking for two vehicles to front
Fitted kitchen with appliance spaces and conservatory access
One family bathroom only; may be limiting for larger families
Built 1950–66; cavity walls assumed uninsulated — insulation recommended
EPC band D; energy-efficiency improvements could reduce bills
Freehold property in a popular Chellaston suburb, close to schools
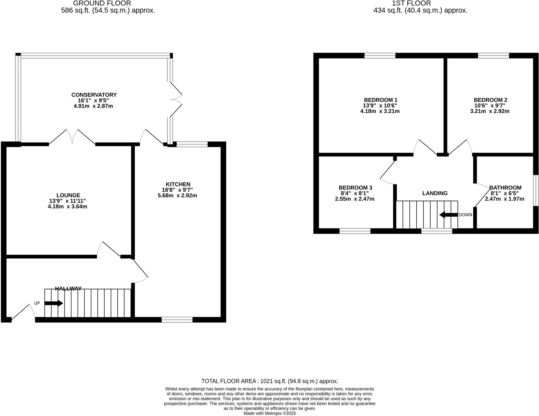
This well-presented three-bedroom semi-detached home in Chellaston offers practical family living in a sought-after suburb. A spacious lounge opens into a bright UPVC conservatory, extending the living space and providing direct access to a private rear garden — ideal for children or weekend entertaining.
The fitted kitchen is generous in size and includes appliance space and plumbing. Two double bedrooms and a good single bedroom suit a young family or those needing a home office. There is one family bathroom with a shower-over-bath arrangement.
Outside, the small rear plot is low-maintenance with patio and lawn; the front provides ample off-street parking for two vehicles. The house is freehold, gas-heated with a boiler and radiators, and fully double glazed, offering comfort and immediacy for move-in buyers.
Practical considerations: the property dates from the 1950s–1960s and appears to have cavity walls without added insulation, which may affect running costs; the EPC is band D. There is just one bathroom, so families should consider layout needs. Overall, this is a comfortable, well-located family home with scope to improve energy efficiency and personalise finishes.
3 bedroom semi-detached house for sale in Sandyhill Close, Chellaston, DE73 — £240,000 • 3 bed • 1 bath • 840 ft²
3 bedroom semi-detached house for sale in Manor Road, Chellaston, Derby, DE73 — £263,950 • 3 bed • 1 bath • 797 ft²
4 bedroom semi-detached house for sale in Ridgeway, Chellaston, DE73 — £260,000 • 4 bed • 2 bath • 1389 ft²
3 bedroom semi-detached house for sale in Glenwood Road, Chellaston, DE73 — £260,000 • 3 bed • 1 bath • 850 ft²
4 bedroom semi-detached house for sale in Ridgeway, Chellaston, Derby, DE73 — £270,000 • 4 bed • 2 bath • 1205 ft²
3 bedroom detached house for sale in Back Lane, Chellaston, DE73 — £315,000 • 3 bed • 1 bath • 1154 ft²






























































