Substantial plot with planning consent — ideal for renovation or rebuild.
4 bedrooms plus large kitchen and living room
Full planning permission for two-storey four-bedroom dwelling
Large, mature private plot with garage and separate driveway
Requires renovation; sold chain free with vacant possession
No central heating system present; electric heaters assumed
Solid brick walls likely without cavity insulation
EPC rating listed as G (very poor) — energy works expected
Local area shows above-average crime and high deprivation
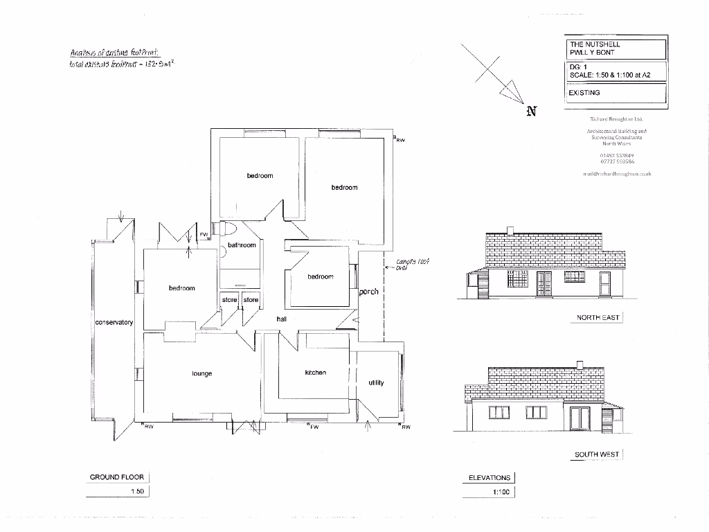
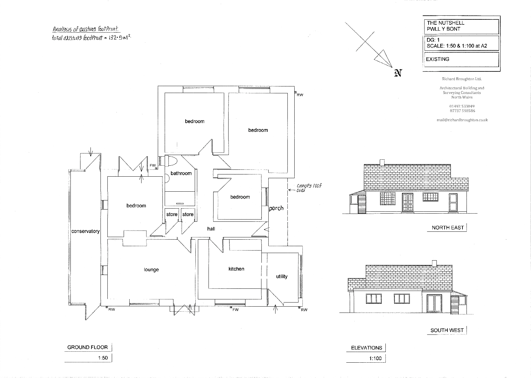
Set on a large, private plot in Meliden, this detached four-bedroom bungalow offers a rare redevelopment opportunity. The existing single-storey home provides a generous kitchen, living room and four bedrooms, while full planning permission has been granted to replace it with a two-storey, four-bedroom dwelling — ideal for someone wanting a bespoke family house. The site includes a large garage, separate driveway and ample off-street parking.
The property is sold chain free with vacant possession, making it straightforward to start works. The garden is mature and well‑hedged, offering high privacy and scope for landscaping or extension. The bungalow will suit a buyer seeking space and setting rather than a move‑in finish: the house requires renovation and currently lacks a central heating system.
Practical considerations are clear: the walls are solid brick with assumed no insulation, main heating is not present (electric heaters assumed), and the EPC rating is listed as G — all factors that will require investment if retaining the existing structure. The location is suburban/semi‑rural with good broadband and mobile signal, but note higher local crime statistics and local area deprivation measures.
For a developer or family looking to create a long‑term home in a desirable village setting, the granted planning consent and large plot deliver genuine upside. Viewing is highly recommended to appreciate the plot, privacy and potential on offer.
3 bedroom detached bungalow for sale in Tan Y Maes, Meliden, LL19 — £235,000 • 3 bed • 1 bath • 927 ft²
2 bedroom detached bungalow for sale in Ffordd Gwilym, Meliden, Denbighshire LL19 8LE, LL19 — £180,000 • 2 bed • 1 bath • 773 ft²
3 bedroom bungalow for sale in Tan Y Maes, PRESTATYN, Clwyd, LL19 — £235,000 • 3 bed • 1 bath • 946 ft²
4 bedroom house for sale in The Paddock, Prestatyn, LL19 — £520,000 • 4 bed • 3 bath • 3370 ft²
2 bedroom detached bungalow for sale in Victoria Road West, Prestatyn, LL19 — £229,950 • 2 bed • 1 bath • 912 ft²
2 bedroom detached bungalow for sale in Merllyn Road, Rhyl, LL18 — £195,000 • 2 bed • 1 bath • 763 ft²






























































