**Standout Features:**
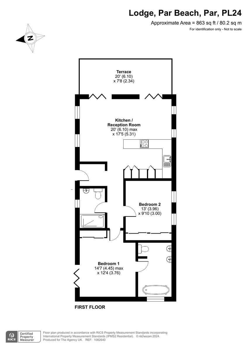
- Luxurious two-bedroom lodge with lake views
- High-end fittings and individual craftsmanship (built in 2018)
- All-inclusive holiday let, sold fully furnished
- Open plan living with bi-fold doors leading to a spacious deck
- Master suite with en-suite bathroom featuring a free-standing bath
- Indoor swimming pool, tennis courts, and children’s play area on-site
- Located close to Par Beach and the historic ports of Fowey and Charlestown
**Potential Downsides:**
- Annual site fees of £6,579 (subject to increase)
- Virtual freehold tenure with land lease until 2047
Discover lakeside living at its finest with this stunning two-bedroom park home at Par Beach. Designed for luxury, this modern lodge features exquisite craftsmanship and high-end fittings, including an open-plan living area that seamlessly connects to expansive decks through bi-fold doors, perfect for relaxation and outdoor entertaining. The master bedroom acts as a serene retreat with a lavish en-suite bath, ensuring comfort and a touch of indulgence every day.
Additionally, the Par Sands Holiday Park offers an exceptional array of amenities, including an indoor swimming pool, sports courts, and a children’s playground, ensuring endless enjoyment for families and holidaymakers alike. Surrounded by the breathtaking beauty of South Cornwall, you’re just a short walk from dog-friendly beaches and rich historical attractions, including the charming ports of Fowey and Charlestown.
This property is being sold fully furnished, allowing you to step right into luxury living or an excellent holiday let opportunity. With no council tax liability and zero stamp duty, this idyllic escape offers both affordability and exclusivity. Don’t miss out on owning this exquisite lodge—your perfect slice of Cornish paradise awaits, and opportunities like this don’t stay on the market for long!
2 bedroom lodge for sale in Par Sands Holiday park, Par, Cornwall, PL24 — £65,000 • 2 bed • 2 bath
2 bedroom bungalow for sale in Par Sands Coastal Holiday Park, Par, PL24 — £75,000 • 2 bed • 2 bath • 436 ft²
2 bedroom lodge for sale in Willerby Clearwater Lodge 2022 Eden Way, Par Sands, Par, PL24 — £140,000 • 2 bed • 1 bath • 800 ft²
2 bedroom park home for sale in PL23 1LZ, PL23 — £258,000 • 2 bed • 2 bath
2 bedroom lodge for sale in Mountlea Country Park, Par, PL24 — £215,000 • 2 bed • 2 bath • 752 ft²
2 bedroom lodge for sale in Seaview Gorran Haven Holiday Park, Boswinger, PL26 6LL, PL26 — £64,995 • 2 bed • 1 bath














































































