Three-bedroom house with large garden, garage and good school links.
No onward chain, ready for quick purchase
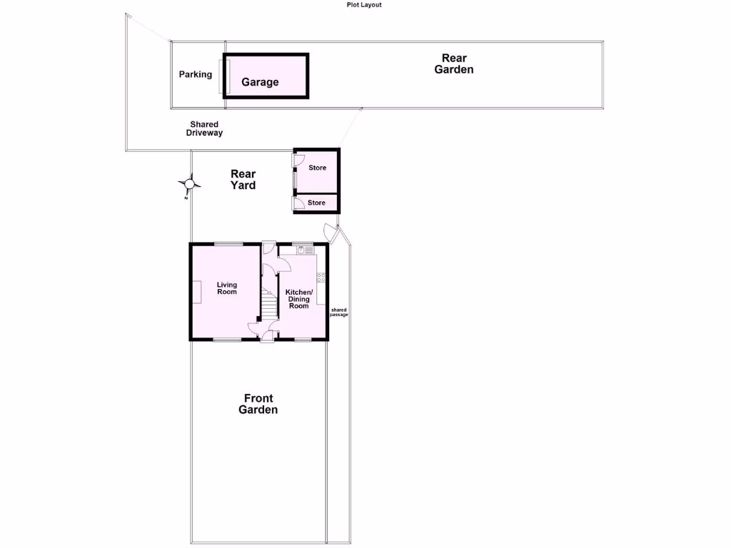
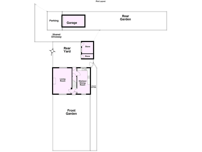
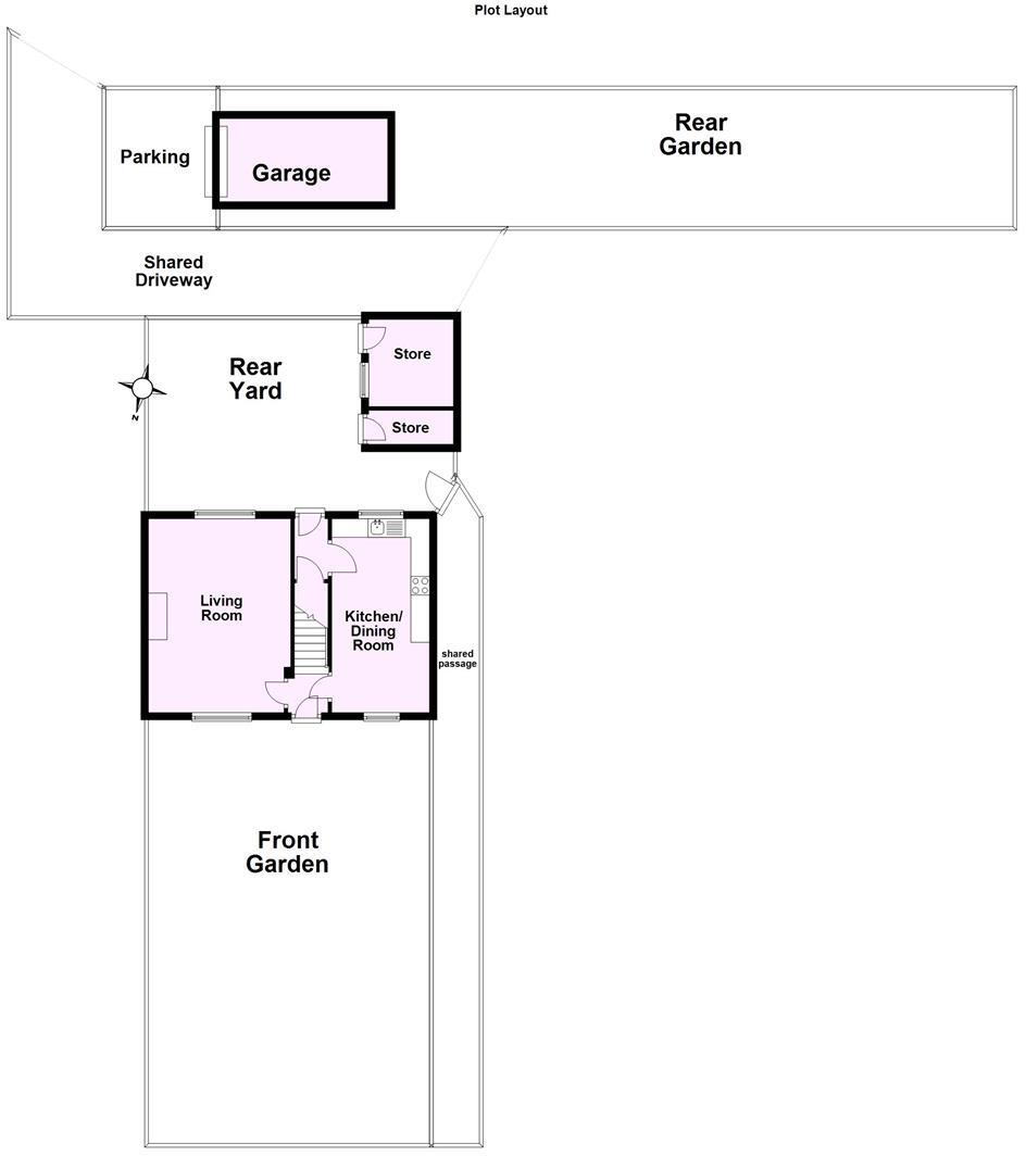
Set in the popular village of Nether Poppleton, this three-bedroom mid-terrace offers a compact, practical family home with clear scope to personalise. The house is offered with no onward chain and includes a detached single garage, driveway parking and an unusually deep rear lawn – a real asset for outdoor living and extension potential (subject to planning).
Inside, accommodation is straightforward and well laid out: a spacious living room, kitchen-diner and a modern family bathroom upstairs alongside three well-proportioned bedrooms. The property is double-glazed, gas‑centrally heated and externally appears well maintained, allowing buyers to move in quickly and update cosmetic finishes over time.
Outbuildings at the rear (including an outdoor toilet and storage) could be adapted into a home office or hobby space, and the long garden creates opportunities for landscaping, play space or extension. Local amenities are strong: nearby primary schools rated Good, regular buses and a local train station provide easy links into York, Harrogate and Leeds.
Buyers should note the house has a relatively small internal footprint for a three-bedroom home and limited indoor storage. The outbuildings require renovation to convert, and the area records above-average crime, which some purchasers will want to factor into budgets and security plans. Overall this is a well-situated, affordable freehold in a sought-after village location, suited to families wanting village life with quick city access.
4 bedroom detached house for sale in Sandyridge, Nether Poppleton, York, YO26 — £525,000 • 4 bed • 3 bath • 1518 ft²
3 bedroom house for sale in Allerton Drive, Nether Poppleton, York YO26 6NL, YO26 — £375,000 • 3 bed • 1 bath • 1435 ft²
3 bedroom semi-detached house for sale in Allerton Drive, Nether Poppleton, York YO26 6NW, YO26 — £375,000 • 3 bed • 1 bath • 1006 ft²
3 bedroom detached house for sale in Easthorpe Drive, Nether Poppleton, York, YO26 6NS, YO26 — £475,000 • 3 bed • 1 bath • 1368 ft²
5 bedroom detached house for sale in Midway Avenue, Nether Poppleton, York, YO26 6NT, YO26 — £695,000 • 5 bed • 2 bath • 2246 ft²
3 bedroom semi-detached house for sale in Beech Grove, Upper Poppleton, York, YO26 6DS, YO26 — £425,000 • 3 bed • 1 bath • 876 ft²


































































