Spacious four-bedroom detached with panoramic rural views in sought-after village.
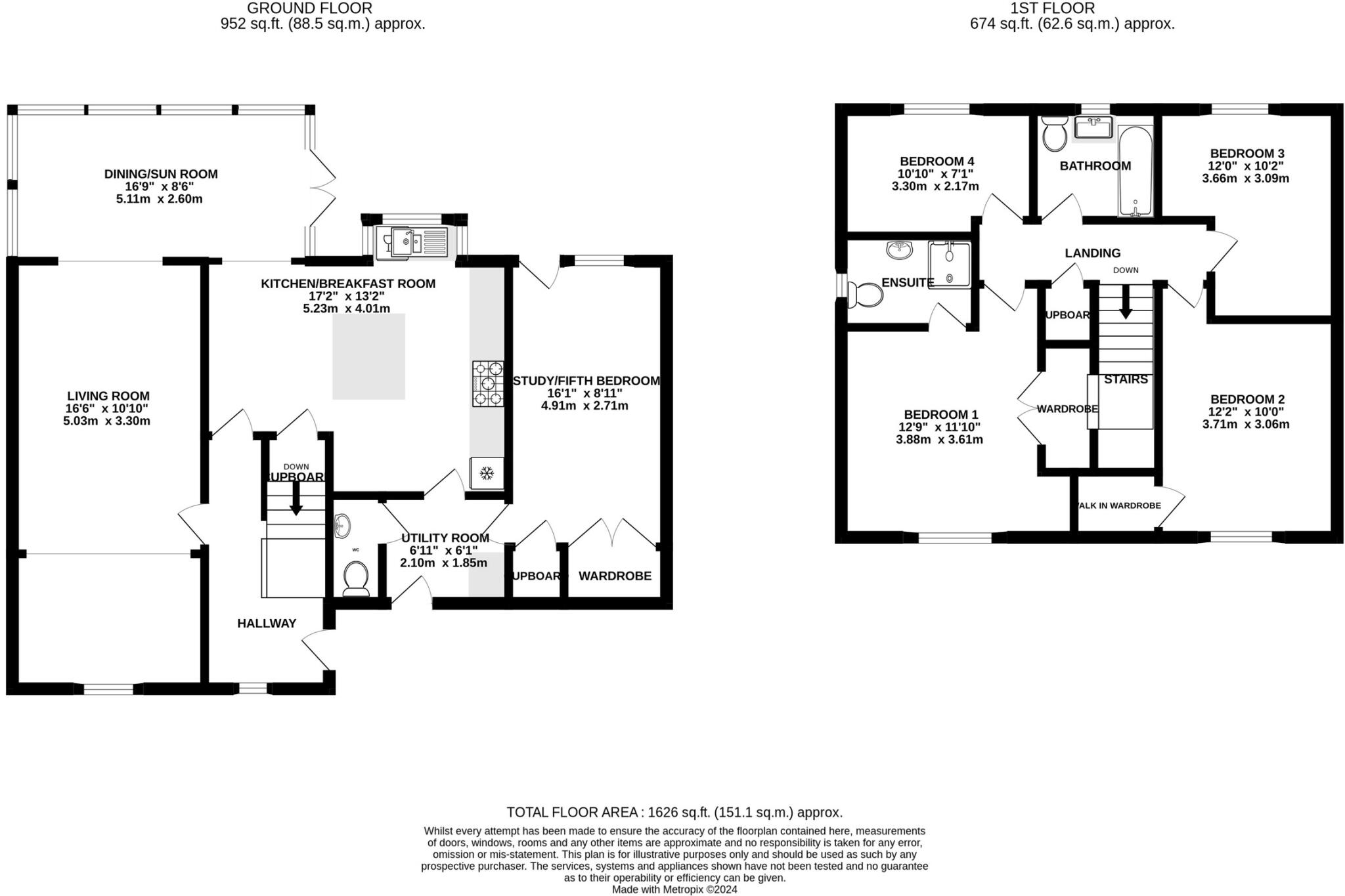
Four double bedrooms plus ground-floor bedroom/office
This modern detached house sits at the end of a quiet cul-de-sac with sweeping panoramic countryside views — an inviting family home in sought-after Abbotskerswell. The ground floor offers flexible living: a double-aspect lounge, a bright dining/sunroom, a well-equipped kitchen with island and separate utility, plus a ground-floor bedroom that can serve as an office.
Upstairs there are four generous bedrooms, including a principal bedroom with en-suite and large built-in wardrobe. The layout suits growing families or those needing adaptable space; the bright sunroom and elevated views are standout features for relaxed daily living and entertaining.
Outside is a low-maintenance garden with lawn, patio and decking plus ample off-street parking and garage. Practical details to note: council tax is above average, the rear garden is not large, and the exact age of the double glazing is unknown. The house was built in the late 1990s/early 2000s and benefits from mains gas central heating and assumed cavity wall insulation.
Located in a prosperous rural community, the property is within easy reach of Newton Abbot, Totnes and the cities of Exeter and Plymouth. Local schools are rated Good, the village offers basic amenities, excellent mobile signal and fast broadband — a comfortable, well-connected home for family life.
4 bedroom detached house for sale in Odlehill Grove, Abbotskerswell, TQ12 — £525,000 • 4 bed • 2 bath • 1420 ft²
4 bedroom detached house for sale in Forde Close, Abbotskerswell, Newton Abbot, TQ12 — £500,000 • 4 bed • 1 bath • 1434 ft²
5 bedroom detached house for sale in Forde Close, Abbotskerswell, Newton Abbot, TQ12 5NN, TQ12 — £600,000 • 5 bed • 2 bath • 2302 ft²
3 bedroom detached house for sale in Manor Road, Abbotskerswell, TQ12 5PR, TQ12 — £500,000 • 3 bed • 2 bath • 1444 ft²
5 bedroom detached bungalow for sale in Manor Close, Abbotskerswell, NEWTON ABBOT, Devon. , TQ12 — £400,000 • 5 bed • 2 bath • 1400 ft²
4 bedroom terraced house for sale in Corn Park Road, Abbotskerswell, TQ12 5QE, TQ12 — £350,000 • 4 bed • 2 bath • 1308 ft²














































































































