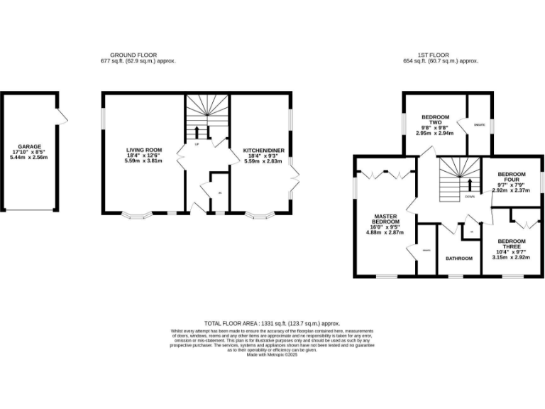
End-plot family house with garden, garage and EV charging, ready to move in..
- Four good-sized bedrooms, two with ensuite shower rooms
- Modern kitchen/diner with integral appliances
- Wide enclosed rear garden with gated side access
- Garage with rear garden access plus carport driveway
- EV charging point installed on driveway
- Freehold; built 2003–2006, double glazed, mains gas heating
- Council Tax band above average — factor ongoing costs
- Recommended survey to confirm condition and services
This well-presented four-bedroom end-of-terrace home on Dunley Close sits on an end plot in Redhouse, offering practical family living and generous outside space. The ground floor features an entrance hallway with a cloakroom, a spacious living room and a modern kitchen/diner fitted with integral appliances — ready for everyday life.
Upstairs are four good-sized bedrooms, two with ensuite shower rooms, plus a main bathroom suite. The layout suits families who need separate reception space and multiple bathrooms for morning routines. The property is freehold, built in the mid-2000s, double-glazed and warmed by mains gas central heating via boiler and radiators.
Outside, a wide, enclosed rear garden with gated side access provides privacy and play space, while a garage with rear access and a carport driveway with an EV charging point add secure parking and practical charging for electric vehicles. Broadband and mobile signals are strong locally and crime levels are low, supporting comfortable family life.
Note the council tax band is above average for the area. Overall condition and fittings are described as modern-to-good, but buyers should arrange a survey to confirm finish and mechanical systems prior to exchange.
4 bedroom semi-detached house for sale in Twineham Road, Redhouse, Swindon, SN25 — £400,000 • 4 bed • 2 bath • 1372 ft²
4 bedroom town house for sale in Fitkin Court, Swindon, SN25 — £325,000 • 4 bed • 3 bath • 1217 ft²
3 bedroom end of terrace house for sale in Tortworth Road, Swindon, Wiltshire, SN25 — £325,000 • 3 bed • 2 bath • 779 ft²
4 bedroom detached house for sale in Mendip Close, Swindon, Wiltshire, SN25 — £425,000 • 4 bed • 2 bath • 1883 ft²
4 bedroom terraced house for sale in Millgrove Street, Swindon, SN25 — £300,000 • 4 bed • 2 bath • 1195 ft²
3 bedroom end of terrace house for sale in Redhouse Gardens, Swindon, Wiltshire, SN25 — £305,000 • 3 bed • 2 bath • 1173 ft²










































































