Characterful rural home near Cockermouth and Lake District fells.
Three-bedroom barn conversion with period features
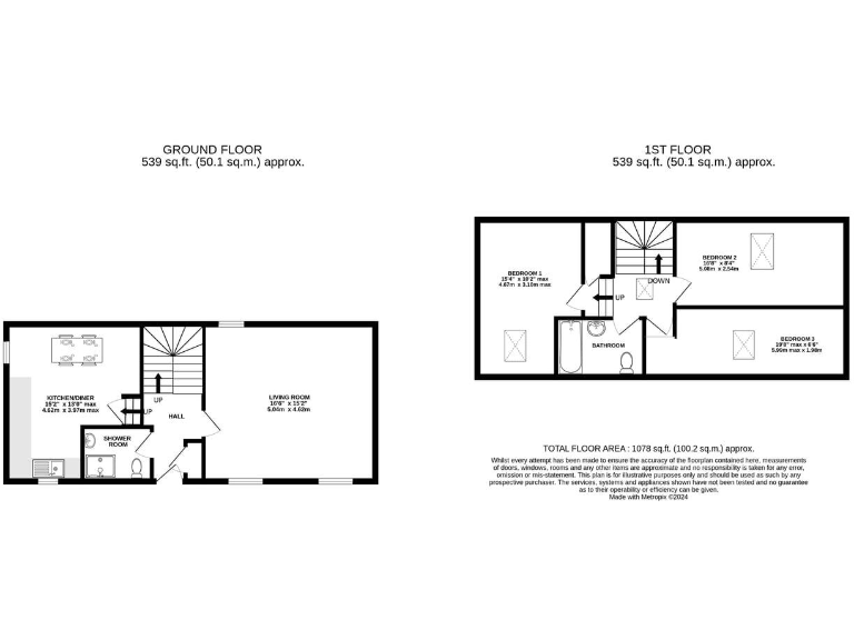
Set within a small rural cluster in Mosser and inside the Lake District National Park, The Byre is a three-bedroom barn conversion offering traditional character and countryside views. The layout provides a spacious living room, kitchen/dining room, ground-floor shower room and three first-floor bedrooms with a family bathroom. Two allocated parking spaces are included and outdoor space is available by separate negotiation.
The property's stone walls, exposed beams and cottage-style rooms give clear period appeal and scope for tasteful upgrading. Full planning permission was granted in June 2025 (three years to implement), creating an opportunity to adapt the layout or improve energy performance and comforts.
Buyers should note measurable drawbacks: the location carries a high flooding risk, broadband speeds are very slow, heating is by electric storage heaters and wall insulation is assumed absent in the original granite construction. The home is freehold and EPC band D, so energy efficiency improvements are likely needed to reduce running costs. Occupancy restrictions may apply locally; clarify before purchase.
This property will suit purchasers seeking a characterful home or a holiday-let opportunity in a quiet hamlet near Cockermouth and the western Lake District fells. It offers immediate livability with clear potential for improvement, but requires practical consideration of flood mitigation, heating upgrades and connectivity constraints.
4 bedroom house for sale in Archway Barn, Greysouthen, CA13 — £499,950 • 4 bed • 4 bath • 1776 ft²
Property for sale in Barn At Skelgill Farm, Newlands, Keswick, Cumbria, CA12 — £450,000 • 1 bed • 1 bath
6 bedroom farm house for sale in Mosser, Cockermouth, CA13 — £600,000 • 6 bed • 3 bath • 2952 ft²
5 bedroom detached house for sale in Birkbank Farm, Mosser, Cockermouth, Cumbria, CA13 — £1,500,000 • 5 bed • 1 bath
3 bedroom cottage for sale in Mosser, Cockermouth, CA13 — £230,000 • 3 bed • 2 bath • 947 ft²
Land for sale in Barn & Land At Skelgill Farm, Newlands, Keswick, Cumbria, CA12 — £250,000 • 1 bed • 1 bath


















































