Chain-free three-bed semi with garden, garage and renovation potential in sought-after Wednesfield..
- Chain free three-bedroom semi-detached house
- Garage and driveway parking for one car
- Pleasant, private rear garden on a decent plot
- Double glazing installed post-2002; mains gas heating
- Popular, tree-lined road with very low local crime
- Some updating and renovation required throughout
- Only one shower room; bathroom modernisation likely needed
- Fast broadband, excellent mobile signal and good schools nearby
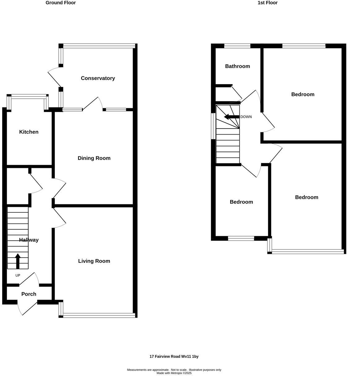
A traditional three-bedroom semi-detached house on Fairview Road, offered chain-free and ready for new owners to personalise. The layout includes a lounge, dining room, sunroom, kitchen, three bedrooms, shower room and a garage, all arranged over two storeys. Double glazing and mains gas central heating are already in place, and the plot includes a pleasant, private rear garden and driveway parking.
This property is well suited to families seeking affordable accommodation in a popular, tree-lined area with very low local crime, fast broadband and excellent mobile signal. Several well-regarded primary and secondary schools are nearby, and local shops and bus links are within easy reach of Wednesfield town centre.
Some updating and renovation are required: rooms feel dated and the home will benefit from cosmetic and likely kitchen/bathroom upgrades to bring it up to modern standards. The home is freehold, has no flood risk and sits on a decent-sized plot — presenting clear scope to increase value through improvement works.
In short, this is a comfortable, practical family home in an affluent suburb that will appeal to buyers who want a liveable property now with room to renovate and add long-term value.
3 bedroom semi-detached house for sale in Wimborne Road, Wednesfield, Wolverhampton, WV10 — £250,000 • 3 bed • 1 bath
3 bedroom semi-detached house for sale in 50 Beechwood Avenue, Wednesfield, Wolverhampton, WV11 1DT, WV11 — £293,995 • 3 bed • 1 bath • 952 ft²
3 bedroom semi-detached house for sale in March End Road, Wednesfield, Wolverhampton, WV11 — £245,000 • 3 bed • 1 bath
3 bedroom semi-detached house for sale in Springhill Road, Wednesfield, Wolverhampton, WV11 — £230,000 • 3 bed • 1 bath • 720 ft²
3 bedroom semi-detached house for sale in Egmont Gardens, Wednesfield, Wolverhampton, WV11 — £240,000 • 3 bed • 1 bath • 980 ft²
3 bedroom semi-detached house for sale in Hatton Crescent, Fallings Park, Wolverhampton, WV10 — £269,995 • 3 bed • 1 bath • 957 ft²






















































