### Standout Features:
- **Property Type:** Unique 4-bedroom barn conversion with existing planning consent for redevelopment.
- **Size:** Approx. 6,000 sq. ft. (557.4 sq. m) with large open spaces.
- **Location:** Set in the picturesque Newchurch-In-Pendle, close to the amenities of Barrowford and the M65 motorway.
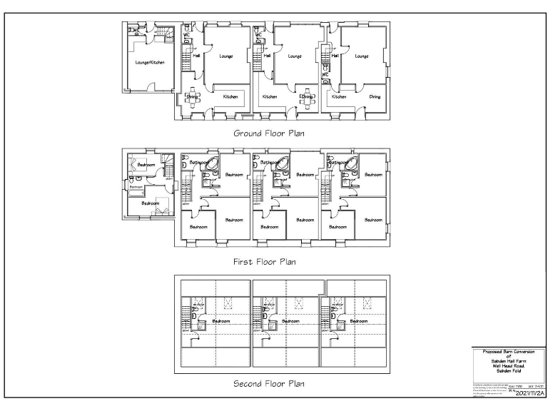
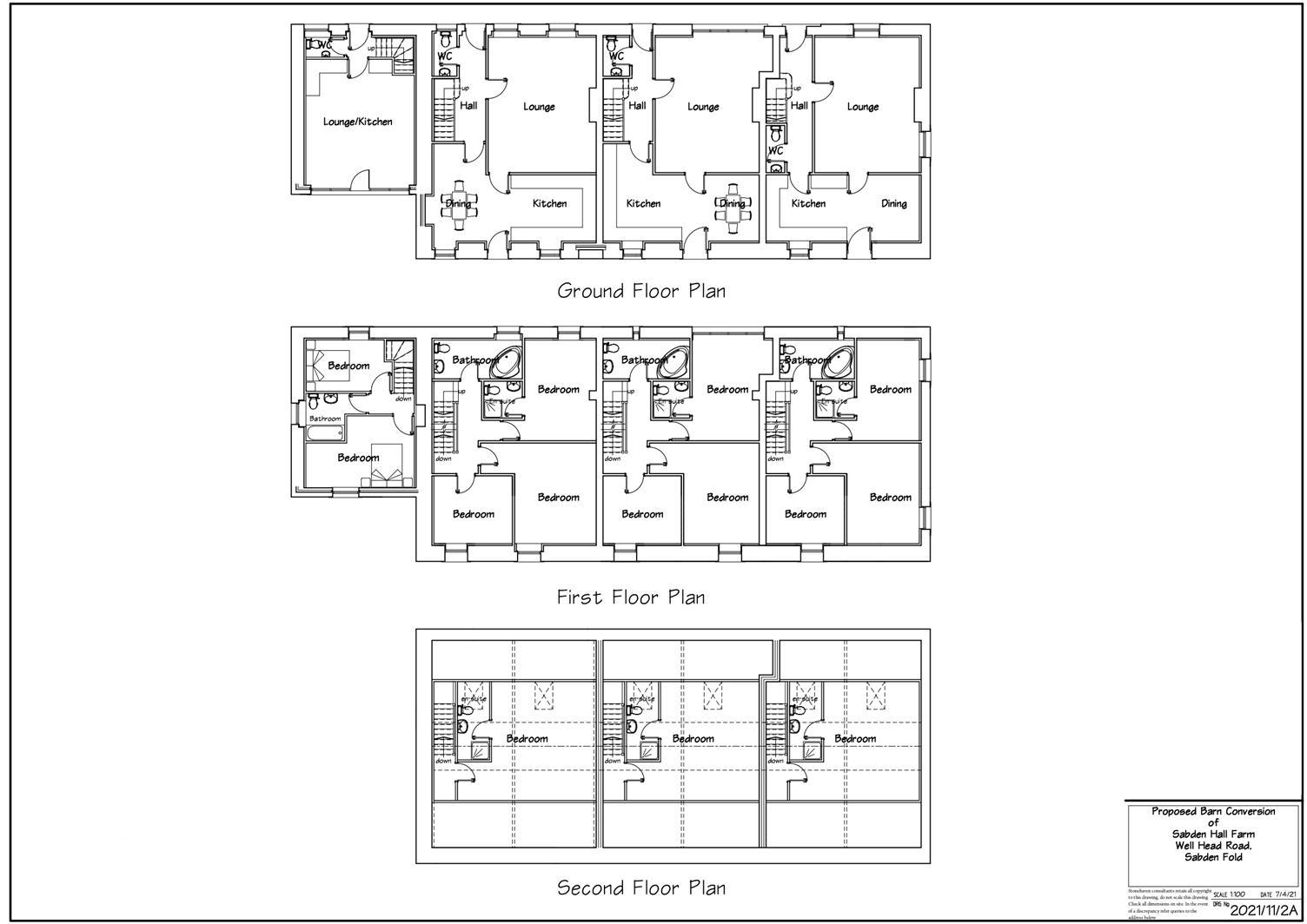
- **Planning Approval:** Consent for conversion into three 4-bed townhouses and one 2-bed property, each with gardens and garages.
- **Rural Setting:** Surrounded by scenic countryside views and open spaces, providing a tranquil living environment.
### Summary:
Experience the charm of rural living with this expansive stone-built barn conversion in Sabden Old Hall Farm. Set within an area of outstanding natural beauty, this property boasts approximately 6,000 sq. ft. of potential, currently open plan and ripe for transformation. With existing planning consent for three spacious three-storey townhouses featuring four bedrooms each, and one two-storey property, this is an outstanding investment opportunity for developers or families wanting to create their dream home.
While the property has elements requiring modernization, its historic structure and serene rural views present a canvas for creativity. The removal of existing single-story attached buildings and rerouting of the access road will enhance accessibility while maintaining the peaceful ambiance this location offers. With the convenience of local amenities just a short drive away and excellent transport links, this unique barn conversion is poised for both comfort and growth. Don't miss the chance to take part in the modern auction process—properties like this, with such significant redevelopment potential in a coveted location, tend to attract attention quickly!
Plot for sale in Sabden Old Hall Farm, Well Head Road, Newchurch-In-Pendle, BB12 — £440,000 • 4 bed • 1 bath • 6000 ft²
Barn for sale in Barn conversion for sale – Wigglesworth Hall Barn, Wigglesworth, Skipton, BD23 4RL, BD23 — £545,000 • 1 bed • 1 bath • 10000 ft²
Farm for sale in Martin Croft Farm, Rossendale , BB4 — £1,400,000 • 4 bed • 1 bath • 2300 ft²
4 bedroom barn conversion for sale in 4 bedroom barn conversion for sale – High Pole Barn, Sutton in Craven, BD20 7BE, BD20 — £650,000 • 4 bed • 1 bath • 2495 ft²
5 bedroom barn conversion for sale in Lumb Carr Road, Little Holcombe, BL8 — £1,000,000 • 5 bed • 3 bath • 4304 ft²
3 bedroom detached house for sale in Norden Road, Rochdale, Greater Manchester, OL11 — £3,750,000 • 3 bed • 1 bath • 1800 ft²






















































