Driveway, good garden and lower‑ground conversion potential near top schools.
End‑of‑cul‑de‑sac location close to schools and amenities
New gas boiler installed — modern heating present
Requires complete modernisation throughout
Lower ground floor has separate access; conversion potential
Four bedrooms but only one bathroom; layout may need rework
Driveway plus good‑sized rear garden for family use
Overall size is modest at c.944 sq ft; smaller room proportions
Tenure not specified — buyer to verify with solicitor
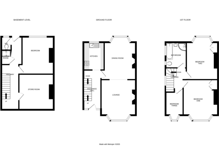
This four-bedroom semi-detached home sits at the end of a quiet cul‑de‑sac in a sought-after Plymouth neighbourhood, close to good schools, shops and Central Park. The house retains 1930s character including bay windows and a pebbledash exterior, and benefits from a new gas boiler and off‑street driveway.
The property requires full modernisation throughout: expect kitchen, bathroom and cosmetic works, plus upgrades to wiring and finishes. The lower ground floor has its own entrance and generous rooms, presenting realistic potential to create a separate basement flat subject to permissions and building work.
Outdoor space includes a small front garden, side driveway and a larger rear garden suitable for children or gardening. The overall internal size is modest (approximately 944 sq ft) with one main bathroom, so some buyers may want to reconfigure layouts to suit a growing family.
This is a renovation opportunity for a family seeking local schools (including two rated in the top 10%), or for an investor prepared to convert the lower ground floor. Tenure is not specified; buyers should verify with their solicitor before committing.
2 bedroom semi-detached house for sale in Braddons Hill, Plympton, Plymouth. Packed with Potential in a Prime Location! 2 double bedroomed semi with large garden, PL7 — £170,000 • 2 bed • 1 bath • 769 ft²
4 bedroom semi-detached house for sale in Huxham Close, Plymouth, PL6 — £300,000 • 4 bed • 1 bath • 1044 ft²
4 bedroom semi-detached house for sale in Hartley Avenue, Plymouth, Devon, PL3 — £440,000 • 4 bed • 1 bath • 1553 ft²
3 bedroom semi-detached house for sale in North Down Road, Plymouth, Devon, PL2 — £290,000 • 3 bed • 1 bath • 975 ft²
3 bedroom semi-detached house for sale in Foliot Avenue, Plymouth, PL2 — £170,000 • 3 bed • 1 bath • 905 ft²
3 bedroom semi-detached house for sale in Manor Road, Plymstock, Plymouth, PL9 7DP, PL9 — £230,000 • 3 bed • 1 bath • 819 ft²


















































































