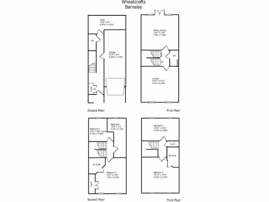
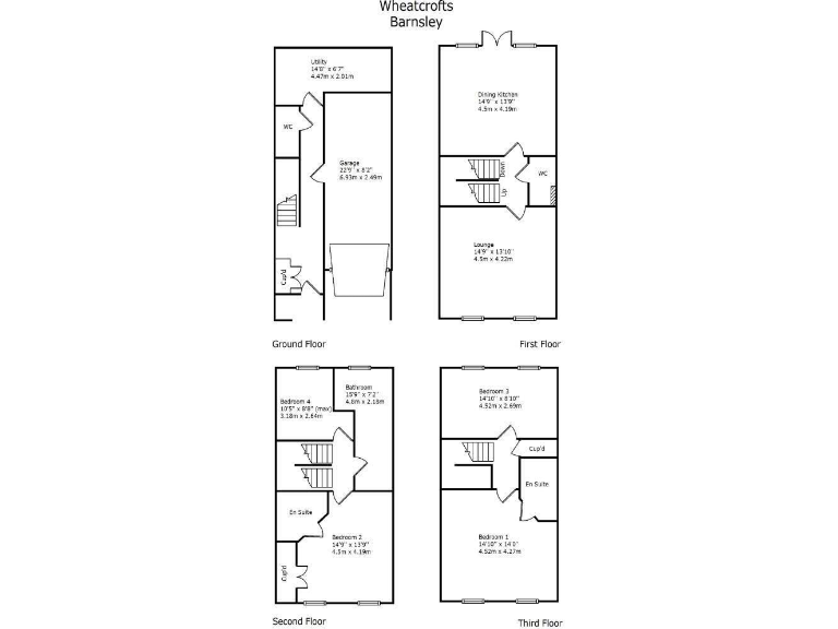
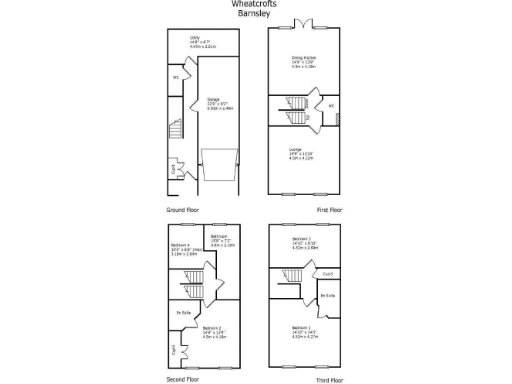
Flexible family home near M1 with garage and low-maintenance garden.
- Four bedrooms across four storeys, two with en-suites
- Open-plan kitchen-diner plus separate lounge for flexibility
- Integrated garage and driveway off-street parking
- Small, low‑maintenance rear garden
- Total area about 1,248 sq ft; rooms described as compact
- Freehold tenure noted; buyer should verify legally
- High local crime rate; consider security measures
- Fast broadband and excellent mobile signal
This four-bedroom, four-storey townhouse offers flexible family living over multiple levels. Two bedrooms have en-suite bathrooms and there’s an additional family bathroom, giving strong practicality for busy households. The open-plan kitchen-diner and separate lounge provide useful entertaining and day-to-day living space.
Externally there is an attached garage, driveway parking and a small rear garden that is low maintenance — ideal for families who prefer manageable outdoor space. The property is freehold and set close to Junction 37 of the M1, local shops and public transport, with fast broadband and excellent mobile signal for working from home or streaming.
Buyers should note the plot is small and several rooms are described as compact, so storage planning may be needed. Local crime levels are high for the area; prospective purchasers may wish to investigate recent local crime statistics and security options. Council tax band C and tenure are stated but unverified, and no services or utilities have been tested, so legal and survey checks are recommended before exchange.
4 bedroom town house for sale in Wheatcrofts, Barnsley, S70 6BZ, S70 — £260,000 • 4 bed • 2 bath • 1716 ft²
4 bedroom terraced house for sale in Heathfields, Barnsley, S70 — £240,000 • 4 bed • 3 bath • 1632 ft²
3 bedroom town house for sale in Wheatcrofts, Barnsley, S70 6BZ, S70 — £225,000 • 3 bed • 2 bath • 1326 ft²
3 bedroom town house for sale in Wheatcrofts, Barnsley, S70 6BZ, S70 — £205,000 • 3 bed • 2 bath • 1087 ft²
4 bedroom town house for sale in Hawshaw Bank, Hoyland, Barnsley, S74 9ND, S74 — £250,000 • 4 bed • 3 bath • 1033 ft²
3 bedroom terraced house for sale in Wheatcrofts, Barnsley, S70 — £215,000 • 3 bed • 2 bath • 1238 ft²


























































































