**Standout Features:**
- Freehold residential development opportunity in a sought-after area
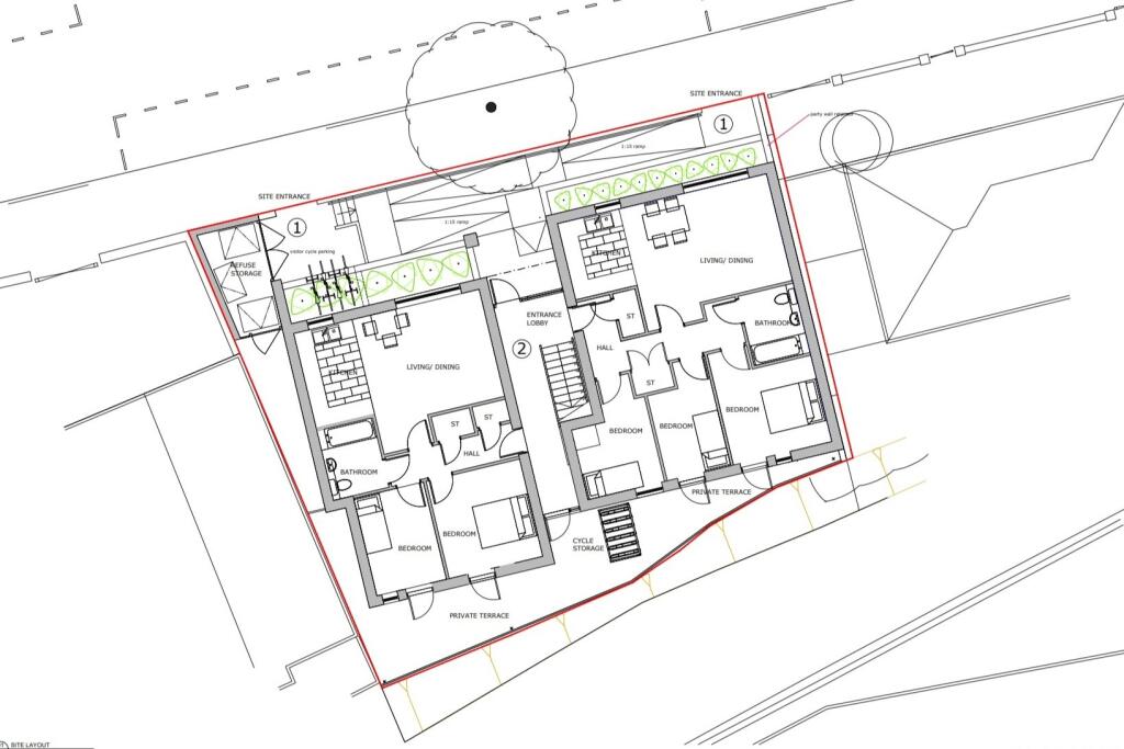
- Planning permission granted for six self-contained apartments (1x3-bed, 4x2-bed, 1x1-bed)
- Spacious design that includes front balconies on the first and second floors
- Located near Lee Station and Blackheath Village, enhancing connectivity and lifestyle
- Close proximity to the revitalizing Leegate shopping centre
- Chain-free sale, offering a straightforward transaction
**Description:**
Discover a prime development opportunity in Blackheath, London SE3. This freehold site at Meadowcourt Works offers planning permission for a modern three-storey residential building comprising six well-appointed apartments, ideal for families and professionals alike. Each unit will benefit from outdoor balconies, perfect for enjoying the tranquil surroundings of this affluent area.
While currently an existing single-storey office structure set for demolition, the potential for this property is immense, with easy access to local amenities, transport links, and reputable schools nearby—making it a lucrative investment option. Notably, the property is vacant and chain-free, streamlining your development process.
Investors looking for a unique build in a desirable location will appreciate the long-term appeal of this project, especially with the ongoing developments in the vicinity. Don’t miss out on this exciting opportunity; it won’t last long!
Semi-detached house for sale in 16 Stratheden Road, Blackheath, London, SE3 7TA, SE3 — £1,100,000 • 1 bed • 1 bath
Plot for sale in Stowage, Greenwich, London, SE8 — £500,000 • 1 bed • 1 bath • 1120 ft²
Land for sale in Land Adjacent to 57 Milborough Crescent, Hither Green, London, SE12 0RR, SE12 — £250,000 • 1 bed • 1 bath • 7045 ft²
Residential development for sale in 3 Mantle Road, Brockley, London, SE4 — £1,250,000 • 1 bed • 1 bath • 3900 ft²
Land for sale in Bexley Road, Erith, DA8 — £1,200,000 • 7 bed • 3 bath
Land for sale in Land to the Rear of Ravensbourne Road, Lewisham, London, SE6 4UX, SE6 — £195,000 • 1 bed • 1 bath • 969 ft²


















