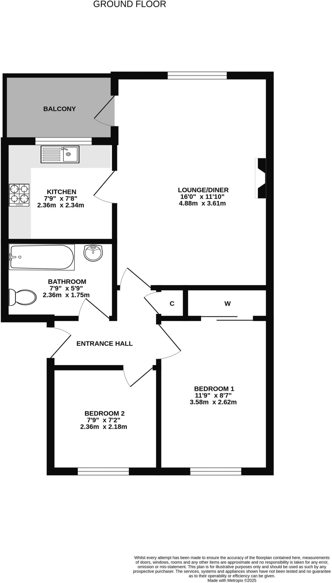
**Standout Features:**
- Two spacious bedrooms with fitted wardrobes
- Bright open-plan lounge/diner with access to a private balcony
- Modern kitchen and family bathroom
- Secure entry system and allocated off-street parking
- Well-maintained communal gardens
- Conveniently located near shops and transport
- Epc Rating C / Council Tax Band B
**Potential Concerns:**
- Small overall size (450 sq ft) may feel cramped for larger families
- Leasehold tenure requires consideration of service charges (£980 annually)
**Summary:**
Discover this charming two-bedroom top floor apartment, perfect for first-time buyers or investors seeking a comfortable living space with modern amenities. This well-appointed home features a bright lounge/diner that opens to a private balcony, offering a secluded outdoor area ideal for relaxation or entertaining. The modern kitchen and family bathroom ensure functionality, while secure entry and allocated parking enhance convenience and peace of mind.
Located just a stone’s throw from local shops, restaurants, and a train station, this property benefits from strong rental potential and ease of commuting. The communal gardens provide a lovely green backdrop, creating a sense of community without sacrificing privacy. While the 450 sq ft layout is compact, it offers an efficient use of space, featuring generous bedrooms and a cozy living area.
With schools rated 'Good' to 'Outstanding' nearby, this apartment is well-suited for small families. Don’t miss out on this exceptional opportunity—schedule your viewing today and imagine the possibilities of making this welcoming apartment your own!
2 bedroom flat for sale in Lefroy Road, Norwich, Norfolk, NR3 — £120,000 • 2 bed • 1 bath • 685 ft²
2 bedroom apartment for sale in Lefroy Road, Norwich, NR3 — £120,000 • 2 bed • 1 bath • 557 ft²
2 bedroom flat for sale in Vale Green, Norwich, NR3 — £120,000 • 2 bed • 1 bath • 679 ft²
2 bedroom apartment for sale in Dalrymple Way, Norwich, Norfolk, NR6 — £130,000 • 2 bed • 1 bath • 520 ft²
2 bedroom flat for sale in Eastgate House, Norwich, NR1 — £185,000 • 2 bed • 1 bath • 582 ft²
2 bedroom flat for sale in Ranson Road, Norwich, Norfolk, NR1 — £160,000 • 2 bed • 1 bath • 862 ft²














































