**Standout Features:**
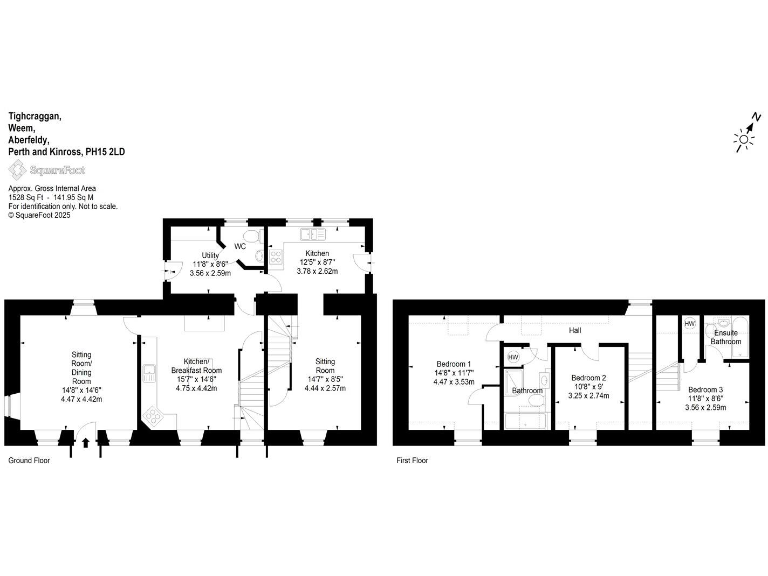
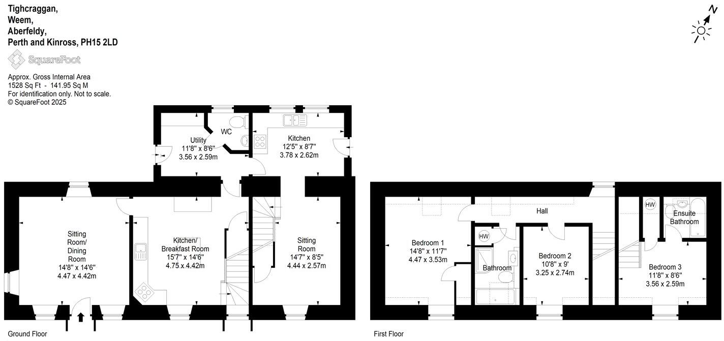
- Charming, traditional detached cottage in good condition
- 3 reception rooms and 3 bedrooms, flexible accommodation options
- Cleverly designed to function as two separate units or a single dwelling
- Excellent location for outdoor activities and local amenities
- Currently successful as a holiday let with a valid short-term rental license until 2027
- Fast broadband and excellent mobile signal
- Affordable council tax in a rural community with ample facilities nearby
**Summary:**
Discover Tigh Craggan, a beautifully designed detached cottage nestled in the picturesque village of Weem, just a stone's throw from Aberfeldy. This property is perfect for first-time buyers, families, or investors seeking a versatile home with income potential. Experience comfort with its 3 spacious reception rooms and stylish décor, while the clever layout allows for seamless integration of two distinct living spaces, catering to multigenerational living or dual rental opportunities.
Each unit features well-appointed kitchens and comfortable living areas, with the added allure of stunning countryside views. Take advantage of the property's current status as a successful holiday let, with excellent occupancy rates and a short-term rental license extending to 2027. With proximity to outdoor adventures, local shops, and essential facilities, Tigh Craggan presents not just a home, but a gateway to a vibrant lifestyle surrounded by natural beauty. Don’t miss your chance to own this unique property—perfect for creating cherished family memories or capitalizing on rental income in a sought-after location.
2 bedroom house for sale in Weem, Aberfeldy, PH15 — £494,950 • 2 bed • 2 bath • 998 ft²
2 bedroom villa for sale in Fernbank, Acharn, Aberfeldy, PH15 2HS, PH15 — £229,950 • 2 bed • 1 bath • 818 ft²
4 bedroom detached house for sale in Tir Aluinn, 7 Golf Course Road, Bridge Of Tilt, Pitlochry PH18 5TG, PH18 — £285,000 • 4 bed • 1 bath • 1528 ft²
3 bedroom terraced house for sale in Taymouth Drive, Kenmore, PH15 — £219,000 • 3 bed • 2 bath • 1033 ft²
2 bedroom semi-detached house for sale in Coignashee, Tomnacroich, Aberfeldy, PH15 2LJ, PH15 — £350,000 • 2 bed • 2 bath • 1356 ft²
2 bedroom detached house for sale in The Bothy, Camserney Farm, Aberfeldy, Perthshire, PH15 — £325,000 • 2 bed • 2 bath • 2026 ft²


















































































