Roomy family home with huge garden and extension potential close to schools and transport.
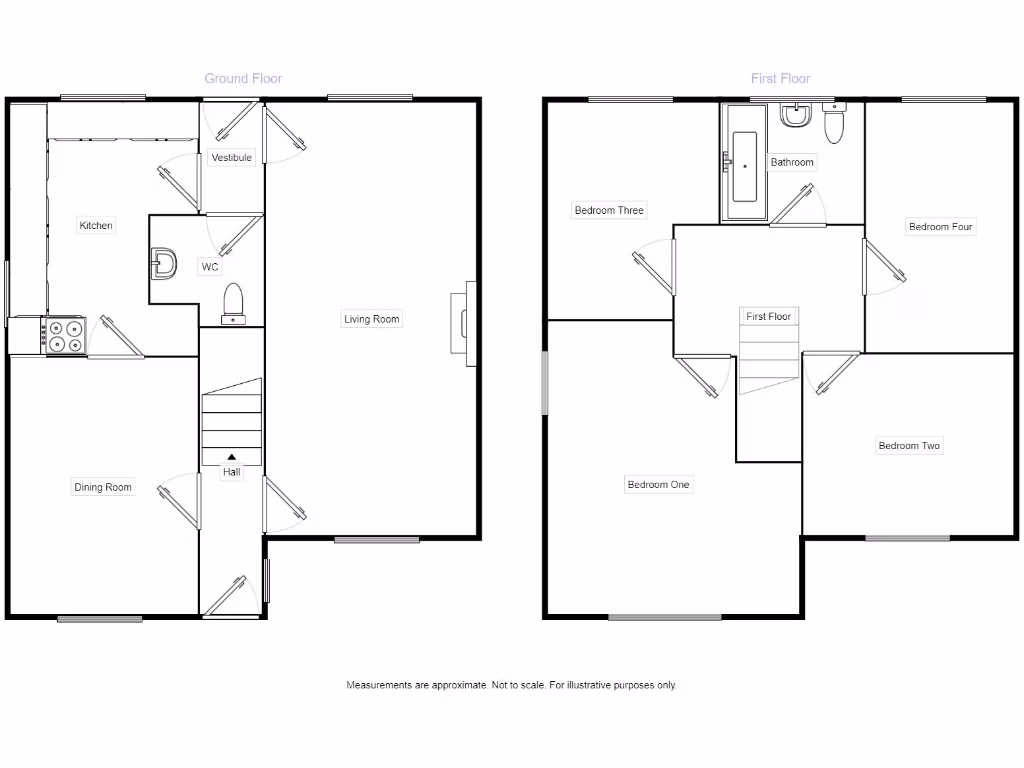
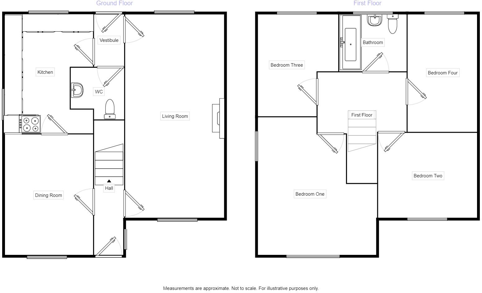
- Four-bedroom detached home on a large plot
- Dual-aspect living room with wood burner
- Single family bathroom only
- Detached garage plus off-street parking for two
- Oil central heating; boiler and running costs apply
- Very slow broadband speeds for heavy internet use
- Excellent mobile signal; no flood risk
- Local crime levels above average
Set on a large plot in the sought-after village of Seamer, this four-bedroom detached home offers spacious, family-friendly accommodation across two reception rooms and a generous rear garden. The house presents a modern-traditional stone exterior and comfortable living areas, including a large dual-aspect living room with a wood burner and a practical kitchen with integrated appliances.
Practical benefits include a detached single garage, off-street parking for two cars, full double glazing and oil central heating. The property is freehold, in Council Tax band D, and sits in a village with primary schooling, shops and good transport links to Scarborough and the A64. There is no flood risk and mobile signal is excellent.
Notable drawbacks are the single family bathroom and reliance on an oil boiler for heating, which can carry higher running and servicing costs. Broadband speeds are very slow — important for home working or heavy internet users. Crime levels are reported above the national average for the area, which some buyers will want to consider.
With its substantial plot and well-presented rooms, the house offers clear potential for extension or garden redesign (subject to permissions) for buyers seeking extra living space or to personalise. Overall this is a roomy, traditional family home in a peaceful village setting with practical commuting links and strong outdoor space.
5 bedroom detached house for sale in Main Street, Seamer, Scarborough, YO12 — £620,000 • 5 bed • 3 bath • 2290 ft²
4 bedroom detached bungalow for sale in Napier Crescent, Seamer, Scarborough, North Yorkshire, YO12 — £300,000 • 4 bed • 1 bath • 1012 ft²
4 bedroom detached house for sale in Abbots Garth, Seamer, Scarborough, North Yorkshire, YO12 — £325,000 • 4 bed • 2 bath • 1033 ft²
4 bedroom semi-detached house for sale in The Grove, Seamer, Scarborough, North Yorkshire, YO12 — £250,000 • 4 bed • 2 bath • 1163 ft²
3 bedroom detached house for sale in Shetland Drive, Seamer, Scarborough, YO12 — £285,000 • 3 bed • 2 bath • 932 ft²
3 bedroom detached house for sale in Ratten Row, Seamer, Scarborough, North Yorkshire, YO12 — £340,000 • 3 bed • 2 bath • 1184 ft²


































































