**Standout Features:**
- Newly renovated 3-bedroom mid-terrace house
- Bright bay-fronted lounge and modern kitchen with utility room
- Private rear garden, ideal for outdoor living
- Spacious loft-converted principal bedroom with en-suite
- Excellent natural light and high-quality finishes
- Convenient location with superb transport links
**Notable Concerns:**
- Above-average crime rate in the area
- Solid brick walls with no insulation may require upgrades
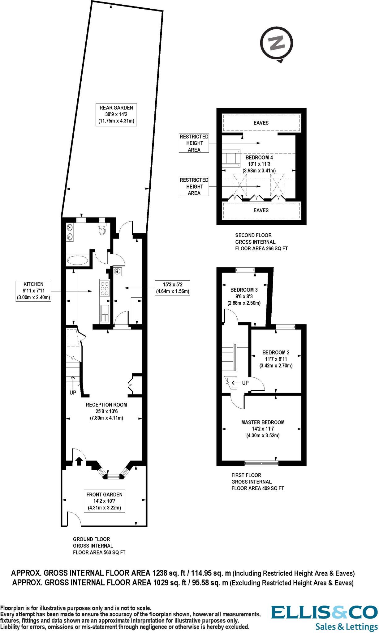
Discover this beautifully renovated three-bedroom mid-terrace home in the heart of South Tottenham, perfect for families and first-time buyers alike. With an inviting bay-fronted lounge, a chic contemporary kitchen, and a private rear garden, this residence seamlessly blends modern comfort with classic period charm. The first floor boasts two double bedrooms and a stylish family bathroom, while the converted loft offers a spacious principal bedroom with en-suite and breathtaking views.
Enjoy the convenience of being walking distance to excellent transport links, including Seven Sisters Station, and a vibrant community filled with diverse restaurants and local shops along Green Lanes. Families will appreciate top-notch schooling nearby, with several 'Good' rated primary and secondary options.
While the home is in turnkey condition, potential buyers should be aware of the above-average crime rate and consider insulation enhancements for improved energy efficiency. This charming gem is a must-see, so act fast to secure your place in this thriving North London neighborhood!
3 bedroom terraced house for sale in Hanover Road, London, N15 — £600,000 • 3 bed • 2 bath • 1126 ft²
3 bedroom terraced house for sale in Tilson Road, London, N17 — £775,000 • 3 bed • 3 bath • 1479 ft²
3 bedroom terraced house for sale in St. Margarets Road, London, N17 — £775,000 • 3 bed • 2 bath • 1313 ft²
3 bedroom terraced house for sale in Dongola Road, London, N17 — £765,000 • 3 bed • 1 bath • 1376 ft²
3 bedroom terraced house for sale in Terront Road, South Tottenham N15 — £825,000 • 3 bed • 1 bath • 753 ft²
5 bedroom terraced house for sale in Sherringham Avenue, London, N17 — £675,000 • 5 bed • 2 bath • 1141 ft²






















































































































