Spacious plot near beach and amenities, ideal for extended family living.
Five bedrooms with scope to create 8–9 bedrooms
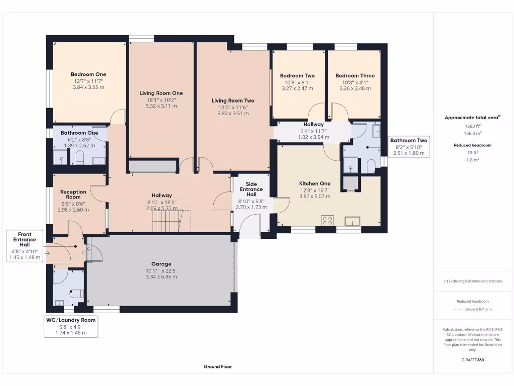
Set on a very large plot on the outskirts of Cromer, this extended detached house offers generous living space for a large or multi‑generational family. The property currently runs as three separate living areas, providing scope to retain self‑contained suites for relatives or to reconfigure into a single home with up to eight or nine bedrooms.
The house includes an integral garage, ample off‑street parking and a private lawned garden with patio — ideal for family entertaining and outdoor hobbies. Its location is convenient: within walking distance of shops, supermarkets, bus and rail links, and close to the seafront and local schools.
Internally the property has been extended but many principal rooms retain dated 1970s styling and will benefit from modernisation to unlock full value. While the layout offers excellent flexibility, refurbishments such as updating kitchens, bathrooms and decorative finishes will be required. Council tax is described as expensive and should be factored into running costs.
Overall this is a substantial freehold family home with strong potential for enlargement, reconfiguration or rental income. It will suit a buyer seeking space and scope — whether for extended family living, a renovation project to add value, or a purchaser who wants a seaside‑edge plot with excellent connectivity.
2 bedroom detached house for sale in Beach Road, Cromer, NR27 — £375,000 • 2 bed • 1 bath • 589 ft²
3 bedroom end of terrace house for sale in Fulcher Avenue, Cromer, NR27 — £375,000 • 3 bed • 2 bath • 1315 ft²
3 bedroom detached house for sale in Arbor Road, Cromer, NR27 — £675,000 • 3 bed • 3 bath • 2274 ft²
4 bedroom detached house for sale in Cromwell Road, Cromer, NR27 — £595,000 • 4 bed • 2 bath • 1253 ft²
4 bedroom semi-detached house for sale in Cromer, NR27 — £440,000 • 4 bed • 2 bath • 1816 ft²
4 bedroom detached house for sale in Station Road, Cromer, NR27 — £375,000 • 4 bed • 1 bath • 1012 ft²


































































































































