Well-presented mid-terrace with garden and two parking spaces for family life.
Three bedrooms with master ensuite and family bathroom
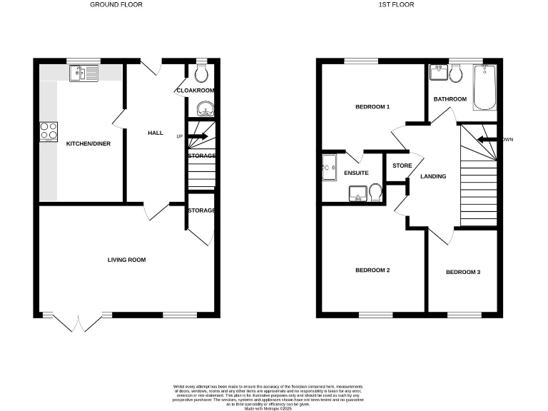
Step into a well-presented three-bedroom mid-terrace suited to families seeking move-in ready accommodation. The ground floor flows from a modern kitchen into a bright living room with French doors opening onto a low-maintenance rear garden and two allocated parking spaces — practical for daily life and weekend entertaining.
The first-floor layout includes a master bedroom with ensuite, two further bedrooms and a family bathroom. Gas central heating and double glazing keep running costs reasonable, and the property is offered freehold with a relatively low council tax band, supporting affordability for first-time buyers or growing households.
The plot is modest and the setting is within a neighbourhood classified as deprived with predominantly blue-collar terraces and a constrained-renter local profile. This is reflected in the wider area’s socio-economic indicators; buyers should consider longer-term capital-growth expectations for this postcode when comparing options.
Practical positives include off-street parking, fast broadband, excellent mobile signal and straightforward maintenance. As the property is presented in good order, it suits buyers wanting minimal immediate work, though purchasers are advised to make their own checks on services and structure prior to exchange.
3 bedroom terraced house for sale in Wootton Road, Gaywood, King's Lynn, PE30 — £210,000 • 3 bed • 2 bath • 786 ft²
3 bedroom terraced house for sale in Post Mill, King's Lynn, PE30 — £205,000 • 3 bed • 1 bath • 819 ft²
3 bedroom terraced house for sale in Tawny Sedge, King's Lynn, PE30 — £199,995 • 3 bed • 1 bath • 977 ft²
3 bedroom terraced house for sale in Anthony Nolan Road, King's Lynn, PE30 — £215,000 • 3 bed • 1 bath • 840 ft²
3 bedroom semi-detached house for sale in Gaywood Road, King's Lynn, PE30 — £210,000 • 3 bed • 1 bath • 941 ft²
3 bedroom terraced house for sale in Extons Place, King's Lynn, PE30 — £225,000 • 3 bed • 1 bath • 895 ft²


































































































