Well-presented one-bedroom with parking and long lease near Hither Green station.
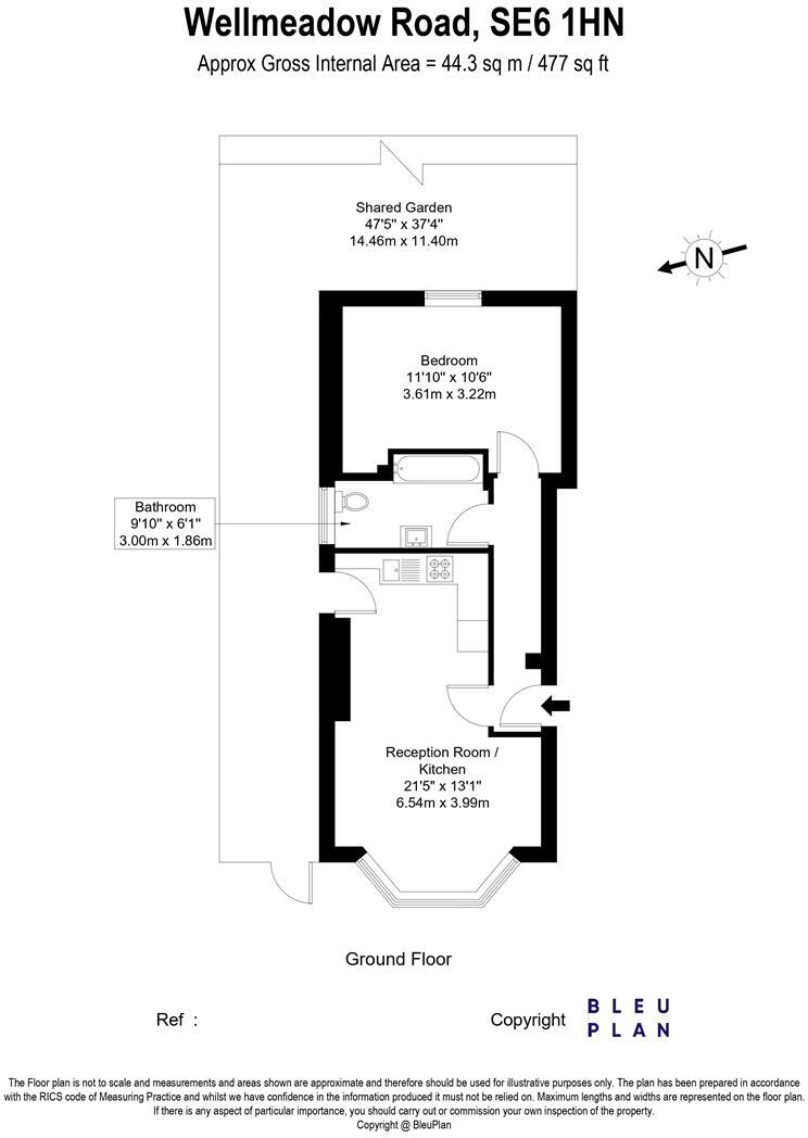
Spacious communal garden with direct access from the flat
Allocated off-street parking space directly outside
Long lease: 989 years remaining
Compact 477 sq ft — suitable for single person or couple
Ground-floor flat in a Victorian conversion with period character
Service charge approx. £1,300 per year; ground rent £75
Solid brick walls likely uninsulated — potential energy upgrade needed
0.6 miles to Hither Green station; quick commutes to London
This ground-floor Victorian conversion offers a compact, well-presented one-bedroom home with direct access to a large communal garden. The flat’s 477 sq ft footprint is arranged around an open-plan reception and kitchen, a double bedroom with built-in storage, and a modern bathroom — a practical layout suited to an individual or couple. Double glazing and a mains-gas boiler provide efficient heating and good noise control.
Commuters will appreciate Hither Green station 0.6 miles away with fast links into central London, plus an allocated off-street parking space directly outside. The lease is effectively new with 989 years remaining, removing common long-lease concerns and making mortgage approval straightforward for many buyers. Local green spaces and well-regarded primary schools are within walking distance.
Buyers should note this is a leasehold flat with an annual service charge of about £1,300 and a small ground rent of £75. The building has solid brick walls (likely uninsulated), so buyers seeking maximum energy efficiency may want to budget for additional insulation or upgrades. The surrounding postcode scores as more deprived than average, though the immediate road is regarded as desirable within SE6.
Overall this is a tidy, characterful apartment that combines period features with modern fittings, long lease security, outside space and parking — a sensible, low-maintenance choice for first-time buyers or investor-purchases with immediate rental appeal.
1 bedroom flat for sale in Ardgowan Road, Catford, London, SE6 — £375,000 • 1 bed • 1 bath • 584 ft²
1 bedroom flat for sale in Springbank Road, Hither Green, SE13 — £325,000 • 1 bed • 1 bath • 624 ft²
1 bedroom flat for sale in Broadfield Road, Catford, London, SE6 — £290,000 • 1 bed • 1 bath • 505 ft²
1 bedroom flat for sale in Minard Road, London, SE6 — £300,000 • 1 bed • 1 bath • 568 ft²
1 bedroom flat for sale in Northbrook Road, Hither Green, SE13 — £350,000 • 1 bed • 1 bath • 627 ft²
1 bedroom flat for sale in George Lane, London, SE13 — £280,000 • 1 bed • 1 bath • 420 ft²


















































