Compact, income-ready property with refurbishment upside for investor buyers.
Two self-contained flats sold as one lot; vacant and ready for immediate occupation
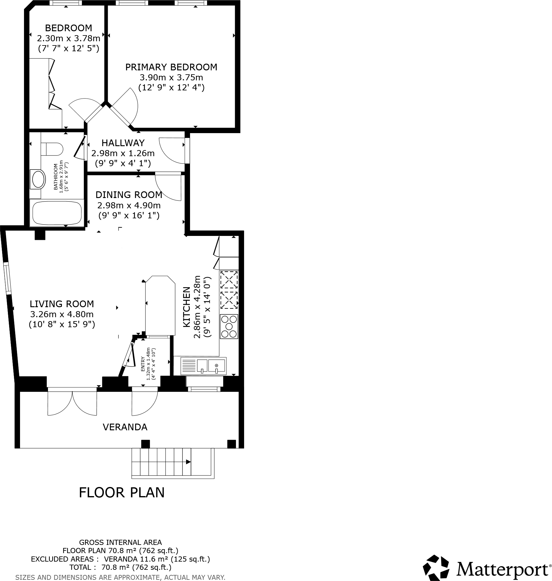
A compact two-unit portfolio on Castleton Road offered vacant and ready for an investor to let or refurbish. The block comprises two self-contained flats sold as one lot — a three-bedroom maisonette with basement space and a two-bedroom flat with veranda — together providing five bedrooms and two bathrooms across approximately 1,244 sq ft.
The properties are reportedly in good condition and benefit from fast broadband, excellent mobile signal, and no flood risk. The layout includes a basement lounge and kitchen in the larger unit, flexible living spaces and a small external area; local amenities, regular buses and several well-rated primary and secondary schools are close by, supporting lettability to families and working tenants.
Material considerations: the title is leasehold and a Buyer’s Premium will apply on sale, and the lot is small in overall footprint. The block is sold as a single transaction, which suits a buy-to-let portfolio purchaser or developer but limits single-occupier options. Buyers should confirm lease terms, service charges and any required works during due diligence.
For a purchaser seeking immediate rental income or light refurbishment opportunity, this vacant two-flat portfolio offers quick possession, existing rental layout and development upside subject to lease constraints and statutory checks. Financial projections and a Let Property pack are available to interested parties.
2 bedroom terraced house for sale in Mellalieu Street, Oldham, Greater Manchester, OL2 — £127,500 • 2 bed • 1 bath • 786 ft²
4 bedroom apartment for sale in TWO X 2 BED APARTMENT INVESTMENT, Pelham Street, Oldham, Greater Manchester, OL8 — £180,000 • 4 bed • 2 bath • 797 ft²
Commercial property for sale in Birks House, Stamford Road, Lees, Oldham, Lancashire, OL4 — £435,000 • 1 bed • 1 bath
2 bedroom flat for sale in Ben Brierley Wharf, Manchester, Greater Manchester, M35 — £145,000 • 2 bed • 2 bath • 667 ft²
1 bedroom flat for sale in Vincent Avenue, Oldham, OL4 — £60,000 • 1 bed • 1 bath
2 bedroom flat for sale in Dale Square, Royton, OL2 — £100,000 • 2 bed • 1 bath • 593 ft²






































































































































































































