**Standout Features:**
- Immaculate five-bedroom detached self-build home
- High-spec finishes and bespoke detailing throughout
- Spacious open-plan kitchen, dining, and living areas
- Luxurious en-suite bathrooms and ground-floor guest suite
- Generous landscaped gardens and ample parking
- Located in a prime village near A1 and M1 access
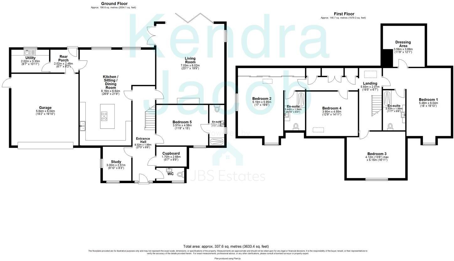
This stunning five-bedroom detached family home is a gem in the sought-after village of Blyth, offered at a guide price of £725,000 to £750,000. With a generous 3,634 square feet of luxurious living space, this property showcases high-end finishes, including a contemporary open-plan kitchen equipped with premium appliances and a spacious living area adorned with natural light. The thoughtful layout includes a ground-floor guest suite with an en-suite bathroom, making it ideal for family and visitors alike.
The master suite is a true retreat, featuring a walk-in dressing room and a lavish en-suite, while each of the other bedrooms benefit from ample storage and flexible space. The meticulously landscaped gardens and extensive off-street parking accommodate the needs of all residents and guests, enhancing your entertaining options. Additional features like underfloor heating, air-conditioning, and integrated smart security systems offer modern convenience.
This property not only serves as a beautiful family home but also presents a golden opportunity for those seeking a balance of comfort and accessibility, with excellent schools and amenities nearby. Act quickly to secure this immaculate turn-key home in a desirable neighborhood!
5 bedroom detached house for sale in Galway House, Bawtry Road, Blyth, Worksop, Nottinghamshire, S81 8HG, S81 — £895,000 • 5 bed • 3 bath • 3682 ft²
4 bedroom detached house for sale in The Hollies, Blyth, Worksop, S81 — £449,500 • 4 bed • 3 bath • 2228 ft²
4 bedroom detached house for sale in The Maltings, Blyth,, S81 — £390,000 • 4 bed • 1 bath • 1786 ft²
4 bedroom detached house for sale in Spital Road, Blyth, Worksop, S81 — £440,000 • 4 bed • 2 bath • 2010 ft²
5 bedroom detached house for sale in Great North Road, Bawtry, Doncaster, DN10 — £670,000 • 5 bed • 3 bath • 3000 ft²
4 bedroom detached house for sale in Manor Farm Croft, Woodsetts, Worksop, S81 — £575,000 • 4 bed • 2 bath • 2619 ft²






























































































































