Compact energy-efficient house ideal for young families or first-time buyers.
Top-floor main bedroom with private en suite
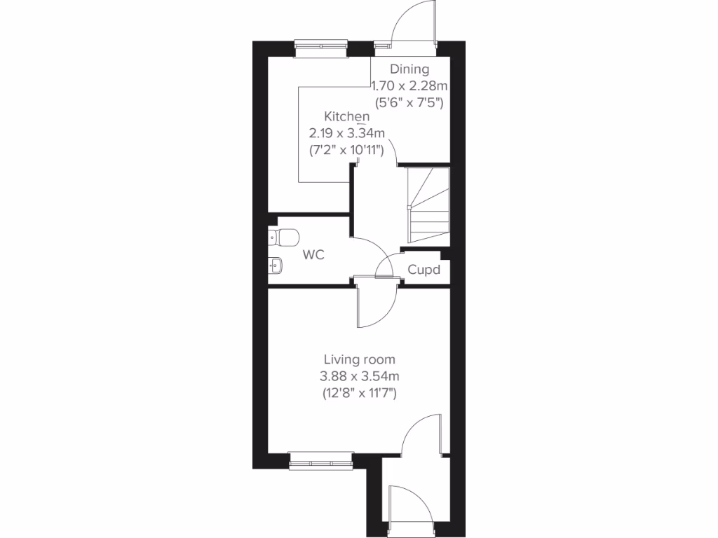
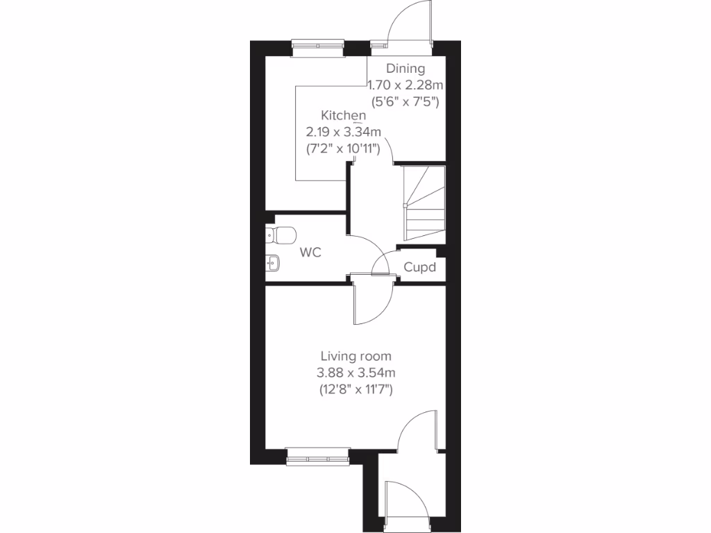
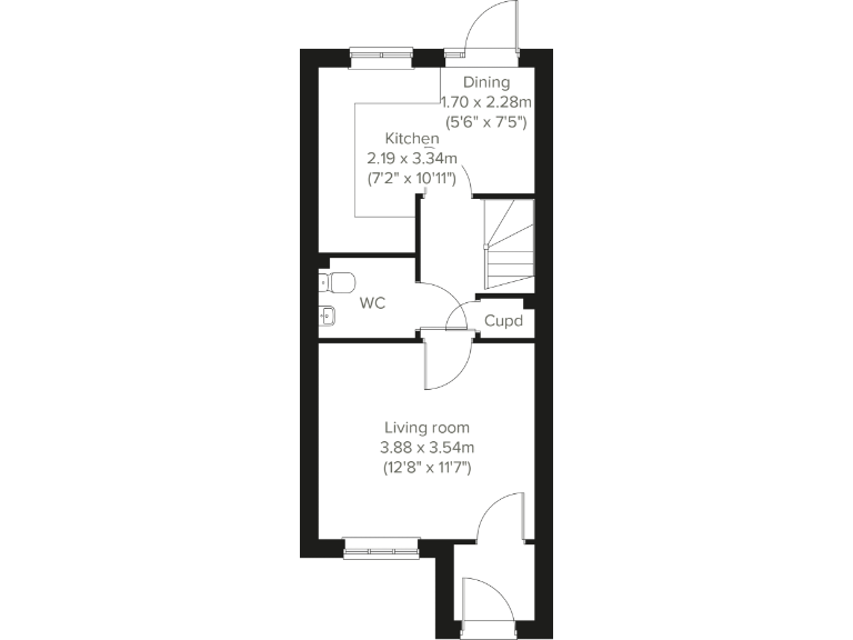
This attractive three-storey terraced home (the Saunton) offers compact, modern living in a quiet village setting. The open-plan kitchen/dining room with outside access and a front-aspect living room suit everyday family life, while a top-floor bedroom with en suite provides a private retreat. Energy-efficient construction and integrated kitchen appliances help keep running costs down.
Practical details include an enclosed porch, downstairs WC, three useful storage cupboards and off-street parking. A small enclosed garden and a decent plot make outdoor space usable without heavy maintenance. The property is freehold and part of a new development, so structural warranties and modern building standards are likely.
Location is strong for families: low crime, excellent mobile signal, fast broadband and several well-rated primary and secondary schools within easy reach. The house’s compact footprint (656 sq ft) means rooms are efficiently planned but smaller than average, which suits first-time buyers or young families rather than those needing generous living space.
Buyers should note the home’s overall size is small and internal space is limited despite smart storage. Council tax band will be confirmed post-occupation. For anyone seeking a low-maintenance, energy-efficient home in a peaceful village with good schools, this property is a practical, contemporary choice.
3 bedroom semi-detached house for sale in Caxton Close,
Brompton On Swale,
DL10 7TT, DL10 — £193,163 • 3 bed • 1 bath • 656 ft²
3 bedroom semi-detached house for sale in Caxton Close,
Brompton On Swale,
DL10 7TT, DL10 — £193,163 • 3 bed • 1 bath • 656 ft²
3 bedroom end of terrace house for sale in Darlington Road, Northallerton, North Yorkshire, DL6 2FQ, DL6 — £229,950 • 3 bed • 1 bath • 656 ft²
3 bedroom semi-detached house for sale in Caxton Close,
Brompton On Swale,
DL10 7TT, DL10 — £193,163 • 3 bed • 1 bath • 656 ft²
3 bedroom semi-detached house for sale in Darlington Road, Northallerton, North Yorkshire, DL6 2FQ, DL6 — £244,950 • 3 bed • 1 bath • 656 ft²
3 bedroom semi-detached house for sale in Darlington Road, Northallerton, North Yorkshire, DL6 2FQ, DL6 — £244,950 • 3 bed • 1 bath • 656 ft²














































































