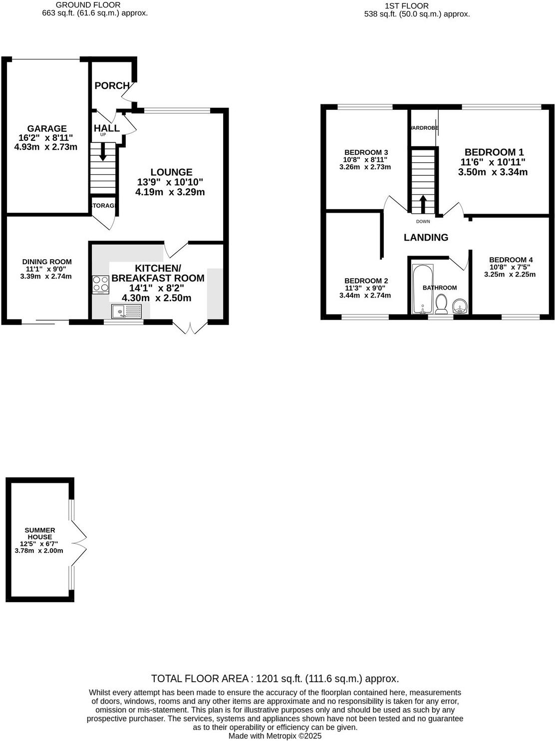
Spacious family home with garden, summer house and excellent parking.
Four bedrooms across extended end-of-terrace layout
Contemporary kitchen/breakfast room with French doors to garden
Enclosed rear garden with summer house, usable as home office
Driveway plus two garages and parking for 2–4 cars
Single family bathroom for four bedrooms — possible morning congestion
Double glazing present; installation date unknown — check ages
Freehold, ~1,201 sq ft; mid‑1970s construction, cavity walls filled
Local schools rated well; area has above-average crime levels
This extended four-bedroom end-of-terrace offers practical family living in a popular Chatham location. The ground floor provides a generous lounge, separate dining room (can serve as a ground-floor bedroom) and a contemporary kitchen/breakfast room with French doors opening onto an enclosed rear garden and summer house — useful as a home office or hobby room.
Outside there is substantial off-street parking: a driveway, a front garage and a further garage en bloc with space for two cars in front. The plot is described as decent-sized and the property is freehold, set in a mid-20th century terrace of similar homes — sensible proportions across about 1,201 sq ft.
Practical details to note: there is a single family bathroom for four bedrooms and the install dates for glazing and some services are not provided, so mechanical and window ages should be checked. Crime levels in the immediate area are reported above average, which may be a consideration for some buyers.
This house will suit growing families seeking good local schools and easy access to amenities and transport links. It also offers scope for light updating or modest remodelling to personalise the extended layout and make the most of the garden and summer house.
4 bedroom semi-detached house for sale in Fallowfield, Chatham, ME5 — £425,000 • 4 bed • 2 bath • 1563 ft²
3 bedroom end of terrace house for sale in Courtfield Avenue, Lordswood, Chatham, ME5 — £350,000 • 3 bed • 1 bath • 1136 ft²
4 bedroom semi-detached house for sale in Oakhurst Close, Chatham, Kent, ME5 — £400,000 • 4 bed • 3 bath
4 bedroom semi-detached house for sale in Sundridge Drive, Chatham, Kent, ME5 — £345,000 • 4 bed • 1 bath • 1278 ft²
4 bedroom terraced house for sale in Ealing Close, Lordswood, Chatham, Kent. ME5 — £375,000 • 4 bed • 2 bath • 1206 ft²
4 bedroom semi-detached house for sale in Harptree Drive, Chatham, ME5 — £415,000 • 4 bed • 2 bath • 1497 ft²


























































