Lifetime-lease option for over-60s; annex and garden add flexible living potential.
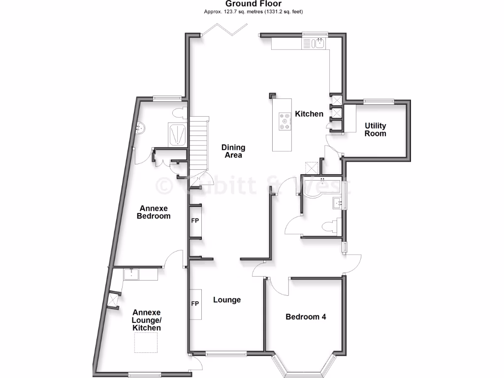
Large open-plan kitchen/diner with island and separate utility room
Self-contained annex with entrance, shower room — flexible guest or rental use
Off-road parking plus rear garage; large front and rear gardens
Lifetime Lease option for over-60s; guide price shown £462,500 (full price £700,000)
Only one main bathroom for four bedrooms; compact total floor area (~743 sq ft)
Electric storage heating and double glazing fitted before 2002 — may need upgrading
Constructed 1950–66; period house that may require modernisation in places
Very low local crime, fast broadband and excellent mobile signal
Set on a large plot in Westdene, this detached single-storey home offers flexible living aimed at older buyers. The heart of the property is a huge open-plan kitchen/diner with a large island and separate utility — ideal for entertaining or daily family life. A separate, self-contained annex with its own entrance and shower room provides independent guest accommodation or potential rental/working-from-home space.
Practical features include off-road parking, a rear garage, double glazing (installed before 2002) and electric storage heating. The house has four bedrooms but only one main bathroom; the accommodation totals about 743 sq ft, so room sizes are generous but the overall floor area is compact for a four-bedroom home. Constructed in the 1950s–60s, the property will suit buyers comfortable with a period home and some updating.
This property is available with a Lifetime Lease purchase option for people aged 60 and over; typical savings against the full market price are significant and vary by age and circumstances. The advertised full market price is £700,000 and the Lifetime Lease guide price shown is £462,500 (example figure based on average savings). Buyers not using a Lifetime Lease would pay the full market price.
Location strengths include very low local crime, fast broadband and excellent mobile signal, plus good nearby primary and secondary schools and convenient bus links. Key negatives to consider are the single main bathroom, electric storage heating system, older double glazing and the need for any personal preferences for modernisation or energy upgrades to be addressed by the purchaser.
4 bedroom semi-detached bungalow for sale in Briarcroft Road, Woodingdean, Brighton, East Sussex, BN2 — £363,500 • 4 bed • 2 bath • 732 ft²
4 bedroom chalet for sale in Downs Valley Road, Woodingdean, Brighton, East Sussex, BN2 — £314,000 • 4 bed • 2 bath • 1077 ft²
4 bedroom chalet for sale in Pitt Gardens, Woodingdean, Brighton, East Sussex, BN2 — £413,000 • 4 bed • 2 bath • 958 ft²
3 bedroom detached bungalow for sale in Balsdean Road, Woodingdean, Brighton, East Sussex, BN2 — £363,500 • 3 bed • 2 bath • 1357 ft²
4 bedroom detached house for sale in Falmer Road, Woodingdean, Brighton, East Sussex, BN2 — £591,000 • 4 bed • 2 bath • 1800 ft²
4 bedroom chalet for sale in Seaview Road, Woodingdean, Brighton, East Sussex, BN2 — £396,000 • 4 bed • 2 bath • 1109 ft²










































































