Extended ground-floor maisonette with private garden and long lease near Alexandra Palace.
Three double bedrooms, all south-facing and naturally bright
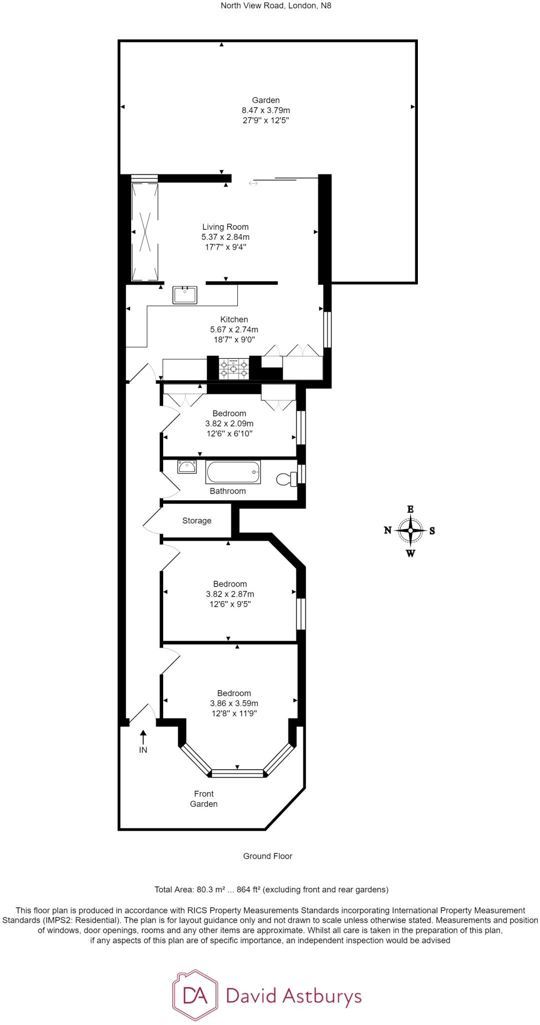
Light-filled three-bedroom ground-floor maisonette with a private entrance and patio garden, set between Priory Park and Alexandra Palace. The rear has been extended to create a spacious semi open-plan kitchen and living area with sliding doors to the garden — a strong asset for families and entertaining. All three bedrooms face south, providing consistent natural light throughout the day.
Practical features include a long lease (147 years remaining) sold with a share of the freehold, mains gas central heating via boiler and radiators, and an average overall footprint of 864 sq ft. Local amenities are strong: Campsbourne schools are nearby (0.2 miles), Hornsey station under a mile away, fast broadband and excellent mobile signal, plus low local crime and an affluent neighbourhood profile.
Built in the 1930s–40s on a solid brick end-terrace, the property is generally well-presented with contemporary touches, exposed brick and skylighting in the living area. The layout is linear and practical for family life, but there is only one bathroom, which could be a consideration for busy households.
Material considerations: the building’s original solid walls are likely uninsulated and may benefit from thermal upgrades; glazing type is not defined. The flat’s single bathroom and occasional adhoc service charge arrangements should be noted. Overall this is a comfortable, well-located maisonette with good natural light and garden space — attractive to families and buyers seeking a spacious ground-floor home close to green spaces and local amenities.
Maisonette for sale in North View Road, London, N8 — £550,000 • 1 bed • 1 bath • 687 ft²
2 bedroom flat for sale in Hawthorn Road, Hornsey, N8 — £550,000 • 2 bed • 1 bath • 703 ft²
2 bedroom apartment for sale in South View Road N8 — £575,000 • 2 bed • 1 bath • 701 ft²
3 bedroom maisonette for sale in North View Road, London, N8 — £625,000 • 3 bed • 1 bath • 654 ft²
3 bedroom flat for sale in North View Road, London, N8 — £650,000 • 3 bed • 2 bath • 877 ft²
3 bedroom maisonette for sale in North View Road, London, N8 — £750,000 • 3 bed • 1 bath • 1158 ft²














































































