Quiet two-bedroom home with garden and parking, ready to personalise.
Chain-free semi-detached cottage in desirable Hoxne village
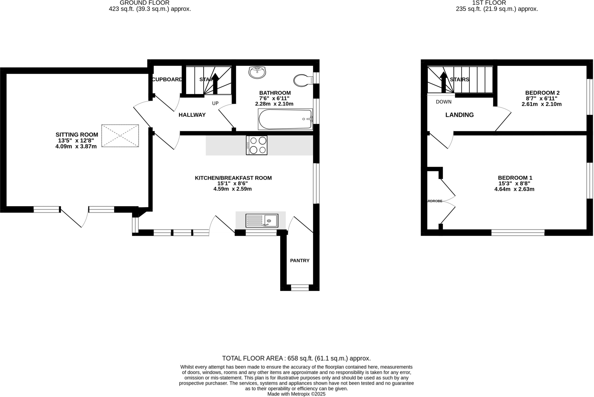
Recently updated kitchen and ground-floor bathroom
Pretty walled garden with paved seating area and outbuilding
Dedicated off-road parking space a few steps from the house
Medium flood risk; property previously flooded but repairs completed
Electric heating with immersion hot water; EPC rating E
Small plot size and average overall square footage (658 sq ft)
Traditional layout with character features and skylight in sitting room
Bridge Cottage is a traditional two-bedroom semi in the heart of Hoxne, offered with no onward chain. The house has been updated with a contemporary kitchen/breakfast room, a renewed bathroom and useful storage including a walk-in pantry and a brick outbuilding. Wooden floorboards, skylight in the sitting room and glazed doors to the garden add character and natural light.
Outside is a pretty walled garden with established borders, circular lawn and paved seating area, plus a dedicated off-road parking space a few steps away. The plot is small but low-maintenance, well suited to buyers seeking a manageable garden in a quiet village setting near local amenities and good schools.
Practical points to note: the property uses electric heating with an immersion cylinder for hot water and currently holds an EPC rating of E. The cottage has a medium flood risk and a past flooding incident; the vendor and Environment Agency measures have been implemented and repairs completed. Tenure is freehold and council tax band B.
This home will suit a buyer looking for village character with recent cosmetic updates who is comfortable with electric heating and the property’s flood history. There is scope to personalise or improve energy performance over time, and the chain-free position supports a straightforward purchase.
3 bedroom cottage for sale in Church Hill, Hoxne, Eye, IP21 — £300,000 • 3 bed • 1 bath • 1164 ft²
3 bedroom detached house for sale in Church Hill, Hoxne, Eye, IP21 5AT, IP21 — £300,000 • 3 bed • 1 bath • 1100 ft²
3 bedroom cottage for sale in Chickering Road, Hoxne, IP21 — £200,000 • 3 bed • 1 bath • 839 ft²
3 bedroom cottage for sale in Low Street, Hoxne, IP21 — £350,000 • 3 bed • 1 bath • 1066 ft²
3 bedroom end of terrace house for sale in Low Street, Hoxne, Eye, IP21 — £225,000 • 3 bed • 1 bath • 1065 ft²
3 bedroom detached house for sale in Watering Road, Hoxne, IP21 — £350,000 • 3 bed • 3 bath • 1378 ft²














































































