Compact two-bedroom apartment with private courtyard and long lease.
Chain free ground-floor flat, ideal for first purchase or letting
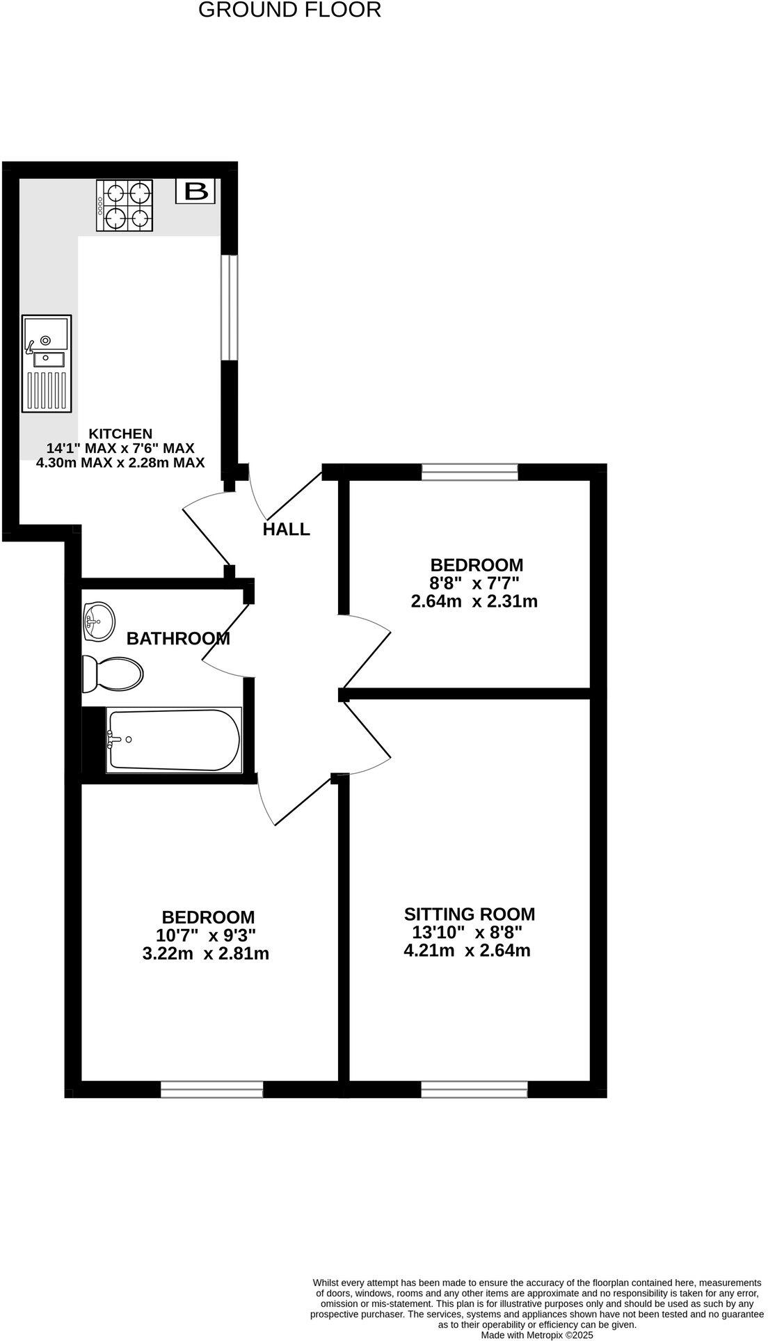
This ground-floor two-bedroom apartment sits discreetly behind a secure gated entrance, just moments from Glastonbury High Street. The compact layout makes for easy low-maintenance living, with a private paved courtyard ideal for a small table or container planting. The sitting room faces south, bringing natural light to the main living space.
Practical features include gas central heating, double glazing and a fitted kitchen/breakfast room with integrated oven and hob. The lease is exceptionally long (978 years) and the property is offered chain free, with a low monthly service charge of £35 (£420 yearly), making running costs straightforward for a first-time buyer.
The apartment is well placed for local amenities, schools and public transport, and benefits from fast broadband and excellent mobile signal. Note the overall internal space is modest — rooms are small — so the layout will suit buyers happy to prioritise location over generous square footage. The wider area records higher crime and economic deprivation statistics, which should be weighed against the convenient town-centre position.
For a buyer seeking a low-upkeep starter home or a straightforward buy-to-let in a central Glastonbury spot, this flat provides a long lease, secure access and easy proximity to shops and services. The small courtyard and south-facing reception add genuine lifestyle appeal, while modest size limits occupant space and storage.
2 bedroom end of terrace house for sale in Avalon Mews Glastonbury, BA6 — £220,000 • 2 bed • 1 bath • 578 ft²
2 bedroom terraced house for sale in Mayfield Close, Glastonbury, BA6 — £199,950 • 2 bed • 1 bath • 421 ft²
2 bedroom apartment for sale in Thorndun House, Wells Road, Glastonbury, Somerset, BA6 9BX, BA6 — £159,950 • 2 bed • 1 bath • 410 ft²
2 bedroom flat for sale in Flat 24, The Tanneries, Sedgemoor Way, Glastonbury, Somerset, BA6 — £165,000 • 2 bed • 1 bath • 532 ft²
2 bedroom apartment for sale in Sedgemoor Way, Glastonbury, BA6 — £169,950 • 2 bed • 1 bath • 549 ft²
2 bedroom triplex for sale in Heritage Court, Glastonbury, BA6 — £125,000 • 2 bed • 1 bath • 540 ft²


































